Te koop Huis

Beschrijving van   

Vergelijk realty's

Logo
Ligging
6200 Châtelineau
Contactgegevens
Century 21 Iris-Concept
+32071960367
E-mail deze adverteerder
BEWAREN
DOORSTUREN

Te koop Huis

Huis Huis Huis Huis Huis Huis Huis Huis Huis Huis Huis Huis Huis Huis Huis Huis Huis Huis
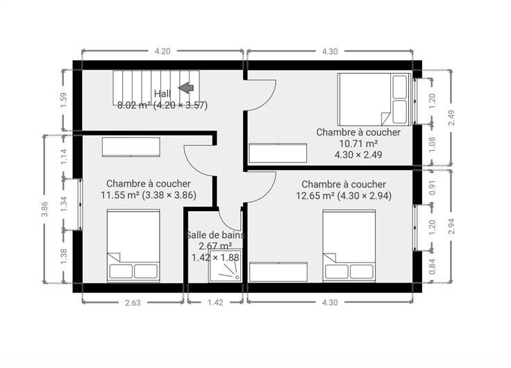
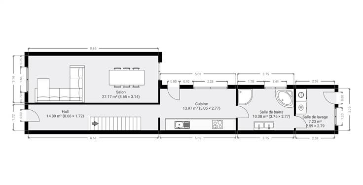
Sorry er is geen nederlandse vertaling beschikbaar. Century 21 iris-concept vous présente une coquette maison en très bon état à vendre à Châtelineau. La maison est composée d'un hall d'entrée, un grand espace de vie, une cuisine équipée, une salle de bain ainsi qu'une buanderie. A l'étage vous disposez de 3 belles chambres et une salle de douche. Grenier aménageable, châssis en double vitrage pvc, chauffage au gaz, terrasse et jardin, garage non attenant. Faire offre à partir de 245 000€ (sous réserve d'acceptation du propriétaire) Infos et visites au 071/96.03.67 ou sur info@century21iris-concept.be
Type vastgoed Huis
Prijs 245.000
Bewoonbare opp. 168
Aantal slaapkamers 3
Aantal badkamers 1