Te koop Huis

Beschrijving van   

Vergelijk realty's

Te koop Huis

Huis Huis Huis Huis Huis Huis Huis Huis Huis Huis Huis Huis Huis Huis Huis Huis Huis Huis Huis Huis Huis Huis Huis Huis
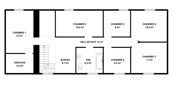
Superbe Maison de 313 m2 - 5 chambres - Bureau - Terrain 1300 m2 - Garage - Parking - Panneaux Solaires 🤩 Grands Volumes - Modernité - Calme - Frontière 🇧🇪 🎯 59 600 Vieux-Reng 🔑 355 000 € ▶️ Entrée, Couloir, Cuisine super équipée, Salle à Manger, Buanderie, Salle de douche, Wc, Salle de Sport ⬆️ À l' Étage : Palier, 5 chambres, Bureau Salle de Bain avec Baignoire Balneo et Wc ℹ️ À savoir : 🔥 Chauffage Gaz de 2017 🌳 Parcelle 1300 m2 🚙 Garage 2 voitures 👍 Parking ☀️ Terrasse, Pergola et Panneaux Solaires ▶️ Taxe foncière : 700 € 📊 DPE C 📌 Distance : 07 kms Jeumont 09 kms Maubeuge 20 kms Mons 🇧🇪 29 kms Avesnes-sur-Helpe 45 kms Valenciennes 79 kms Bruxelles 🇧🇪
Type vastgoed Huis
Prijs 355.000
Bewoonbare opp. 313
Aantal slaapkamers 5
Aantal badkamers 1