Te huur Appartement

Beschrijving van   

Vergelijk realty's

Te huur Appartement

Appartement Appartement Appartement Appartement Appartement Appartement Appartement Appartement Appartement Appartement Appartement Appartement
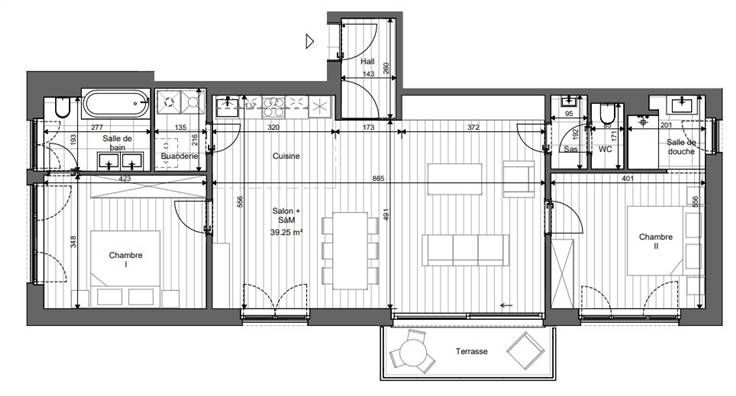
1ère occupation !!! UCCLE (Fort Jaco), dans une nouvelle construction, à proximité immédiate des commerces, des restaurants, du David Lloyd et de la forêt de Soignes, sublime appartement de 115m² + terrasse de 6,5m², comprenant: hall d'entrée, wc invités, beau living, cuisine full équipée, espace buanderie, hall de nuit, 2 chambres, salle de bain avec wc, salle de douche, porte blindée et cave privative. Parking auto en option (130€/mois), parking moto en option (65€/mois) et local vélos. L'appartement est équipé de rails, luminaires dans certaines pièces. Libre directement. BAIL SOCIETE OK! Pour conditions et visites: 02 344 88 84 / rent@tribel-immo.be / www.tribel-immo.be (PEB: B)
Type vastgoed Appartement
Prijs 2.125
Bewoonbare opp. 115
Aantal slaapkamers 2
Aantal badkamers 1