Te koop Lichtrijke nieuwbouwwoning

Beschrijving van   

Vergelijk realty's

Te koop Lichtrijke nieuwbouwwoning

Lichtrijke nieuwbouwwoning Lichtrijke nieuwbouwwoning Lichtrijke nieuwbouwwoning Lichtrijke nieuwbouwwoning Lichtrijke nieuwbouwwoning Lichtrijke nieuwbouwwoning Lichtrijke nieuwbouwwoning Lichtrijke nieuwbouwwoning Lichtrijke nieuwbouwwoning Lichtrijke nieuwbouwwoning
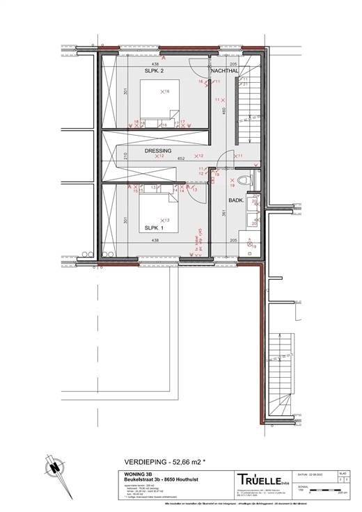
Lichtrijke nieuwbouwwoning De woning is ingedeeld als volgt: 158.60m² bewoonbaar oppervlakte! Gelijkvloers: inkomhal, gastentoilet, berging (3.97m2), leefruimte met open keuken ( 38.98m2), fietsenberging (6.13m2). 1ste verdiep: slaapkamer 1 (13.03m2), slaapkamer 2 (13.03m2), dressing, nachthal, badkamer met douche, dubbele lavabo en toilet (7.1m2) 2de verdiep: zolder (37.81m2) met vaste trap - mogelijkheid om 2 extra kamers te creëren. De woning beschikt over een staanplaats vooraan, afgesloten fietsenberging en zuidgerichte tuin met terras! Troeven van deze woning: -Mogelijk aankoop aan 6%BTW -zonnepanelen (tot 4000kwh/jaar) -warmtepomp -vloerverwarming -regenput (5200L) -rustige ligging Prijsindicatie woning (1ste en enige woning 6% BTW regel): Grondwaarde: 56.000+ 12% registratie= 62.720€ Constructiewaarde: 304.000 + 6%BTW= 322.240€ - TIJDELIJK - 6%!!= 285.760€+ BTW Totaal: 384.960€ - ACTIEPRIJS: 348.480€!! (Registratie en btw inbegrepen) TIJDELIJKE KORTING VAN 18.240€ OP DE CONSTRUCTIEWAARDE!
Type vastgoed Huis
Prijs 341.760
Bewoonbare opp. 158
Aantal slaapkamers 2
Aantal badkamers 1