Te koop Ideaal huis voor professionals

Beschrijving van   

Vergelijk realty's

Te koop Ideaal huis voor professionals

Ideaal huis voor professionals Ideaal huis voor professionals Ideaal huis voor professionals Ideaal huis voor professionals Ideaal huis voor professionals Ideaal huis voor professionals Ideaal huis voor professionals Ideaal huis voor professionals Ideaal huis voor professionals Ideaal huis voor professionals Ideaal huis voor professionals Ideaal huis voor professionals Ideaal huis voor professionals Ideaal huis voor professionals Ideaal huis voor professionals Ideaal huis voor professionals
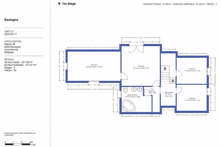
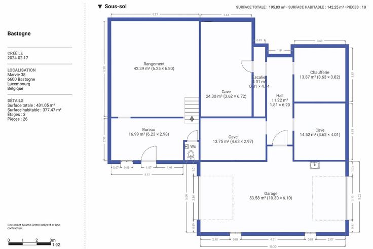
Het ERA B-LUX agentschap heeft het genoegen dit huis voor te stellen gelegen in Marvie, Bastogne, een dorp dicht bij het stadscentrum en de Luxemburgse grens. Het bestaat uit een woonkamer van 30m2, een ingerichte keuken met centraal kookeiland, 3 slaapkamers waaronder een ouderlijke suite, een bijkeuken van 22m2, een badkamer, een grote garage met elektrische aansluiting en meer dan 100m2 kelderruimte. Het heeft ook een terras en een grote, ideaal gelegen tuin met ononderbroken uitzicht. Maar dat is nog niet alles: het heeft ook 3 kantoren en een commerciële ruimte van meer dan 40m2, ideaal voor een vrij beroep of om te verhuren. Geïnteresseerd? Aarzel dan niet om contact op te nemen met het ERA B-LUX agentschap op 084/311.888
Type vastgoed Huis
Prijs 480.000
Bewoonbare opp. 377
Aantal slaapkamers 4
Aantal badkamers 1