Te koop Projet - 2 immeubles à réhabiliter avec pe...

Beschrijving van   

Vergelijk realty's

Te koop Projet - 2 immeubles à réhabiliter avec permis

Projet - 2 immeubles à réhabiliter avec permis Projet - 2 immeubles à réhabiliter avec permis Projet - 2 immeubles à réhabiliter avec permis Projet - 2 immeubles à réhabiliter avec permis Projet - 2 immeubles à réhabiliter avec permis Projet - 2 immeubles à réhabiliter avec permis Projet - 2 immeubles à réhabiliter avec permis Projet - 2 immeubles à réhabiliter avec permis Projet - 2 immeubles à réhabiliter avec permis Projet - 2 immeubles à réhabiliter avec permis Projet - 2 immeubles à réhabiliter avec permis Projet - 2 immeubles à réhabiliter avec permis Projet - 2 immeubles à réhabiliter avec permis
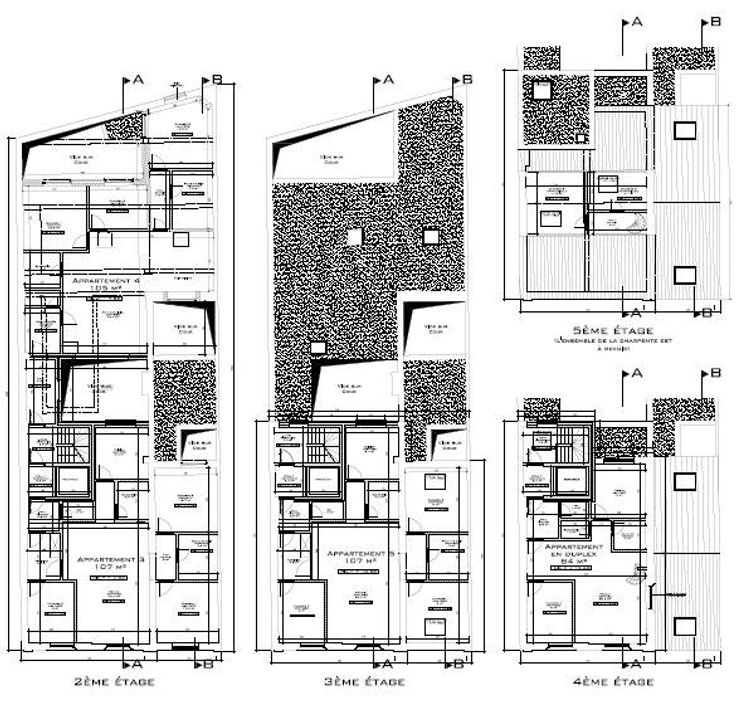
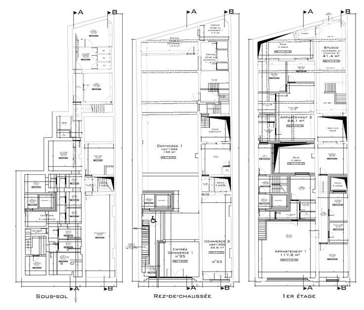
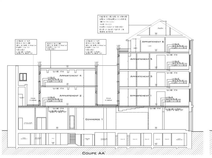
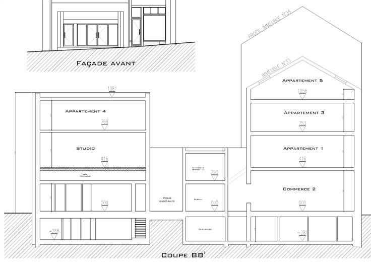
Ondernemers en investeerders opgelet! Te koop in het hartje van Charleroi, op 250m van de Place Vauban, een project voor de renovatie van 2 gebouwen (bouwvergunning reeds toegekend!). Met een bruto vloeroppervlakte van ongeveer 1300m² verdeeld over 6 verdiepingen, laat de bouwvergunning toe om 6 appartementen te ontwikkelen (2 tot 3 kamers - van 64m² tot 117m² per eenheid), 2 commerciële verdiepingen van respectievelijk 152m² en 35m², een studio van 41m², opslagkelders en technische lokalen. Aanzienlijk restauratiebudget vereist, aangezien de gebouwen volledig moeten worden opgeknapt als "lege huls" na een brand. Enorm potentieel en aantrekkelijke strategische locatie! Meer informatie, gedetailleerde plannen en bezoeken op aanvraag. Tot binnenkort!
Type vastgoed Commercieel
Prijs 349.000
Bewoonbare opp. 1300