Te koop Villa

Beschrijving van   

Vergelijk realty's

Te koop Villa

Villa Villa Villa Villa Villa Villa Villa Villa Villa Villa Villa Villa Villa Villa Villa Villa Villa
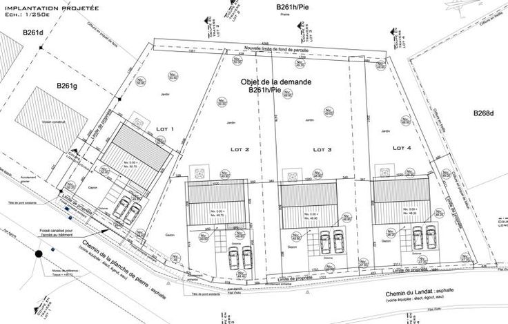
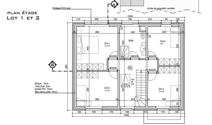
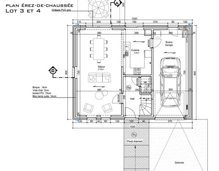
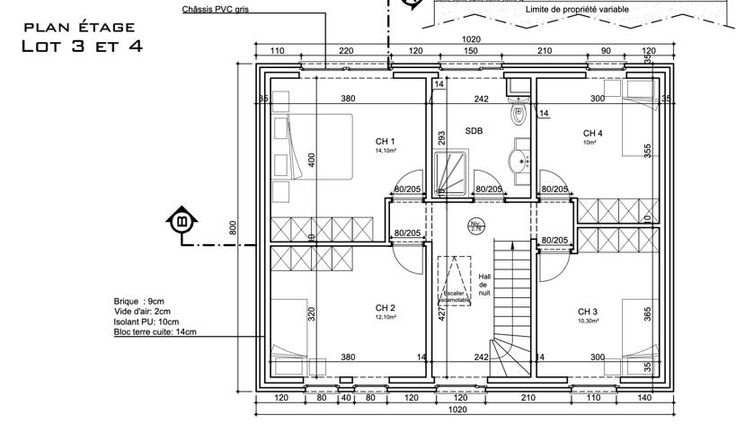
Alliance Partners vous propose un projet neuf de 4 villas 4 façades sur la commune de Mainvault dans l'arrondissement de Ath. Le projet s'étant du Chemin de la Planche de Pierre au Chemin du Landat. Ces 4 villas se composent comme suit : Rez-de-chaussée : Hall d'entrée, wc avec lave main, living (27,8 m2), cuisine ouverte (9,9 m2), buanderie (7,2m2), garage 1 voiture. Étage 1 : Hall de nuit , chambre 1 (14,1 m2), chambre 2 (12,1 m2), chambre 3 (10,3 m2), chambre 4 (10 m2), salle de bain avec wc (7,1 m2). Combles : Grenier de rangement accessible par une escalier escamotable (45 m2). Techniques : Chauffage par pompe à chaleur (chauffage sol au rez-de-chaussée et radiateurs à l'étage), production d'eau chaude..., raccordement à l'égout, citerne d'eau de pluie avec pompe (5000 litres), ventilation simple flux. Vente sous la loi Breyne (paiements échelonnés en fonction de l'avancement du chantier) Attention, les prix affichés ne comprennent pas la cuisine équipée et l'aménagement des abords. Lot 1 : 359.000 euros - Terrain de 5,33 ares - Largeur à rue : 18,05 m - Surface bâtie : 167,6 m2 Lot 2 : 369.000 euros - Terrain de 5,97 ares - Largeur à rue : 24,09 m - Surface bâtie : 167,6 m2 Lot 3 : 369.000 euros - Terrain de 6,88 ares - Largeur à rue : 17,01 m - Surface bâtie : 163,2 m2 Lot 4 : 349.000 euros - Terrain de 5,38 ares - Largeur à rue : 21,05 m - Surface bâtie : 163,2 m2 Les prix sont compris hors frais d'achat, hors frais de raccordements et hors frais de géomètr
Type vastgoed Huis
Prijs 349.000
Aantal slaapkamers 4
Aantal badkamers 1