Te koop Huis

Beschrijving van   

Vergelijk realty's

Te koop Huis

Huis Huis Huis Huis Huis Huis Huis Huis Huis Huis Huis Huis Huis Huis
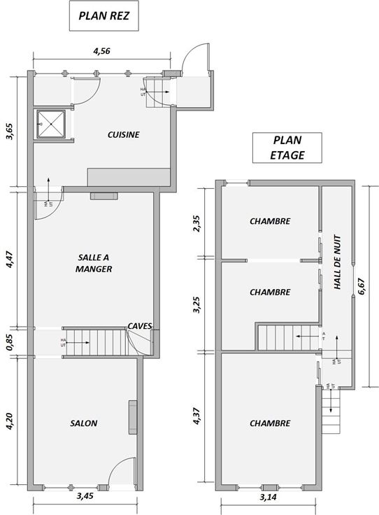
Gelegen in het centrum van Andenne, vlakbij winkels, scholen en openbaar vervoer, huis met 2 verdiepingen en tuin (te renoveren). Het bestaat uit een woonkamer, eetkamer en keuken (in te richten) op de begane grond. Op de eerste verdieping een nachthal en twee slaapkamers. Een tuin, een in te richten zolder en kelders maken de beschrijving compleet! Uitrusting: DV PVC kozijnen + SV hout; eenfasige elektriciteit (niet conform); kunstleien dak; verwarming (nog aan te brengen). Als je op zoek bent naar een huis om te renoveren in de buurt van alle voorzieningen, dan moet je dit beslist zien!
Type vastgoed Huis
Prijs 80.000
Bewoonbare opp. 90
Aantal slaapkamers 2