Te koop Huis

Beschrijving van   

Vergelijk realty's

Te koop Huis

Huis Huis Huis Huis Huis Huis Huis Huis Huis Huis Huis Huis Huis
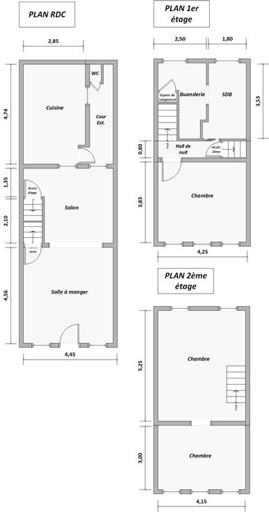
Gelegen in het centrum van Andenne, vlakbij winkels, scholen en openbaar vervoer, heeft deze goede 2-onder-1-kap stadswoning een kleine binnenplaats aan de achterkant. Op de begane grond beschikt het over een ruime eetkamer/salon (18m²), een eetkamer, een half ingerichte keuken, een wasruimte met toegang tot een binnenplaats en een badkamer. De 1e verdieping bestaat uit twee slaapkamers. De tweede verdieping bestaat uit een slaapkamer en een inrichtbare zolder. Twee kelders met een totale oppervlakte van 27 m² maken de indeling compleet. Kenmerken : PVC DV raamkozijnen, ETERNIT dak, Gasgestookte convectoren. A MUST SEE!!! Prijs: FO apd 89.000€ ss réserve d'acceptation.
Type vastgoed Huis
Prijs 89.000
Bewoonbare opp. 115
Aantal slaapkamers 3
Aantal badkamers 1