Te huur Handelszaak

Beschrijving van   

Vergelijk realty's

Te huur Handelszaak

Handelszaak Handelszaak Handelszaak Handelszaak Handelszaak Handelszaak Handelszaak Handelszaak Handelszaak Handelszaak Handelszaak Handelszaak Handelszaak Handelszaak Handelszaak Handelszaak Handelszaak Handelszaak Handelszaak Handelszaak Handelszaak Handelszaak Handelszaak Handelszaak Handelszaak Handelszaak Handelszaak
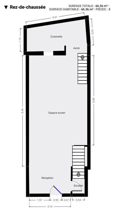
Rez-de-chaussée commercial avec terrasse sur une place prisée à proximité immédiate du rond-point Schuman À louer : Rez-de-chaussée commercial situé sur une charmante place, à seulement deux minutes à pied du rond-point Schuman. Ce bien bénéficie d'une autorisation Horeca historique en vigueur depuis 1928. Caractéristiques principales : Belle terrasse : ± 36 m² (libre d'utilisation pour brasserie). Salle intérieure : Capacité de ± 50 couverts, superficie de ± 45 m². Cuisine équipée : ± 9 m² avec hotte installée. Sous-sol fonctionnel : WC Homme/Femme séparés. Deux espaces de stockage : ± 25 m². Chaudière individuelle au gaz et adoucisseur d'eau. Conditions : Garantie locative : 6 mois. Restrictions : Pas de café bingo, ni de bar de nuit. Pour toute information complémentaire ou pour organiser une visite, veuillez contacter le 0498/11.20.20.
Type vastgoed Commercieel
Prijs 2.100
Bewoonbare opp. 90