Te koop Prachtige open bebouwing met tuin te Aalst!

Beschrijving van   

Vergelijk realty's

Te koop Prachtige open bebouwing met tuin te Aalst!

Prachtige open bebouwing met tuin te Aalst! Prachtige open bebouwing met tuin te Aalst! Prachtige open bebouwing met tuin te Aalst! Prachtige open bebouwing met tuin te Aalst! Prachtige open bebouwing met tuin te Aalst! Prachtige open bebouwing met tuin te Aalst! Prachtige open bebouwing met tuin te Aalst! Prachtige open bebouwing met tuin te Aalst! Prachtige open bebouwing met tuin te Aalst! Prachtige open bebouwing met tuin te Aalst! Prachtige open bebouwing met tuin te Aalst! Prachtige open bebouwing met tuin te Aalst! Prachtige open bebouwing met tuin te Aalst! Prachtige open bebouwing met tuin te Aalst! Prachtige open bebouwing met tuin te Aalst! Prachtige open bebouwing met tuin te Aalst! Prachtige open bebouwing met tuin te Aalst! Prachtige open bebouwing met tuin te Aalst! Prachtige open bebouwing met tuin te Aalst!
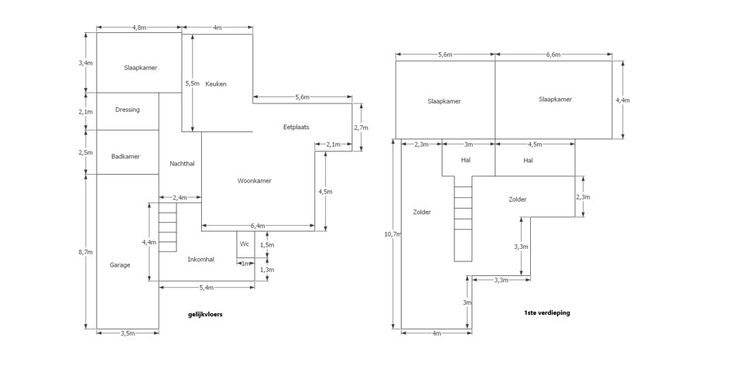
Op het gelijkvloers betreedt u via de inkomhal met gastentoilet de ruime en lichtrijke leefruimte, die aansluit op de volledig ingerichte keuken (incl., dubbele spoelbak, oven, kookplaat, vaatwasser en dampkap). Daarnaast bevindt zich hier een slaapkamer met een praktische dressing en een badkamer met douche, lavabo en toilet. Op de eerste verdieping zijn er twee zeer ruime slaapkamers. Bovendien is er een grote zolderruimte, die kan worden omgevormd tot extra leefruimte of gebruikt kan worden als handige opslagplaats. Vanuit de woonkamer en keuken geniet u van een prachtig uitzicht op het overdekt terras en de zuidgerichte, aangelegde tuin met een handige tuinberging. De tuin is langs beide zijden bereikbaar, wat zorgt voor extra gebruiksgemak. Verder is er een ruime garage met automatische poort en een oprit die plaats biedt aan meerdere voertuigen. Deze woning is uitgerust met alle moderne comfort: een gunstig EPC, hoogrendementsbeglazing en verwarming op aardgas. Bovendien ligt ze nabij winkels, scholen, openbaar vervoer en het zwembad van Aalst. De bereikbaarheid is uitstekend dankzij de nabijheid van belangrijke invalswegen, zoals de N9 richting Affligem/Asse. Voor meer info en/of een bezoek ter plaatse, contacteer Tijl via tijl@immotijl.be of 0477 44 86 11.
Type vastgoed Huis
Prijs 585.000
Bewoonbare opp. 273
Aantal slaapkamers 3
Aantal badkamers 1