Te huur Handelszaak

Beschrijving van   

Vergelijk realty's

Te huur Handelszaak

Handelszaak Handelszaak Handelszaak Handelszaak Handelszaak Handelszaak
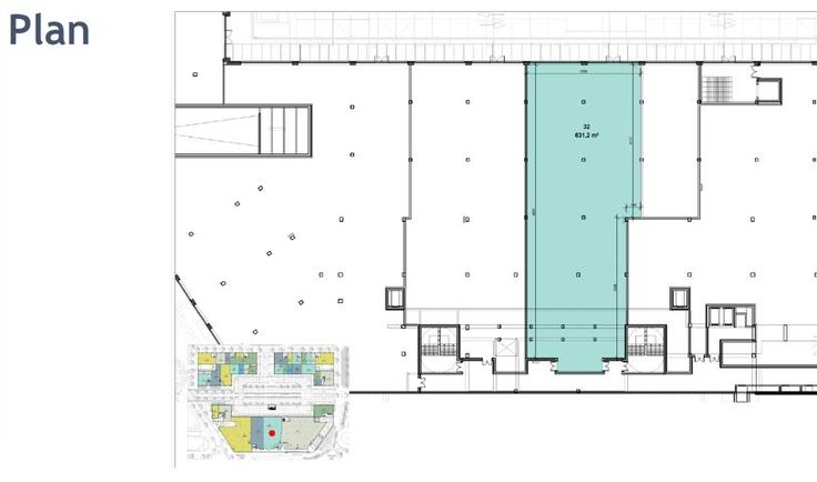
Iaci vous propose à la location cette surface de 631m² dans le retail park "Les papeteries de Genval". Centre commercial regroupant plusieurs enseignes nationales dont : Carrefour Market, IKKS, Picard, Veritas, Hunkemöller, Di, Poils& Plumes, Literie Prestige... 33 magasins répartis sur 10.000 m². Conditions financières: Précompte immobilier à charge du locataire + charges communes et de marketing. Infos et visites: Stephane GILLES 0490/13.58.38 – stephane.gilles@iaci.be
Type vastgoed Commercieel
Prijs 7.890
Bewoonbare opp. 631