Te koop Bouwgrond

Beschrijving van   

Vergelijk realty's

Te koop Bouwgrond

Bouwgrond Bouwgrond Bouwgrond Bouwgrond Bouwgrond Bouwgrond Bouwgrond
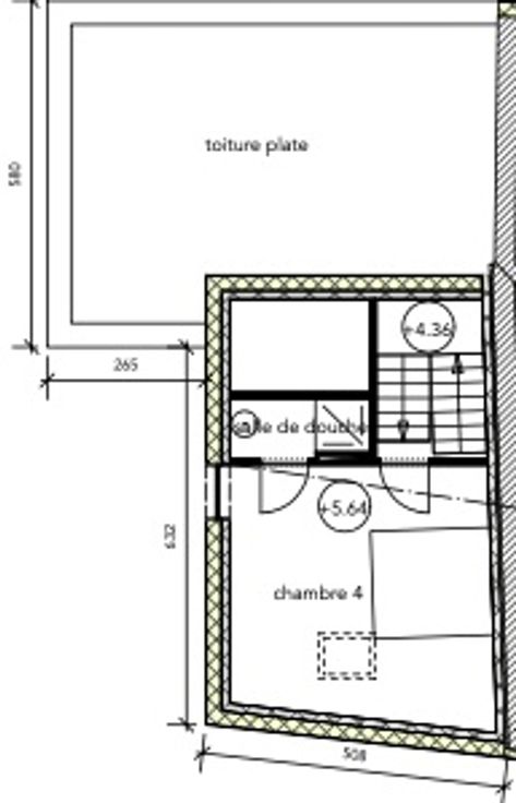
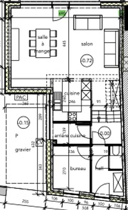
Superbe terrain à bâtir de 2 ares 57 centiares à bâtir avec vue dégagée. PERMIS OBTENU. Cependant entièrement libre de constructeur et de projet. Situation stratégique dans une rue calme à proximité de la gare, des écoles et commerces (5 à 10 min à pied). 15 minutes en voiture de la E19. Le permis actuel comprend une maison 3 façades orientée sud-est comprenant 4 chambres, un bureau, SDB, SDD, living, cuisine,.. + place de parking privative + grande terrasse et jardin. Plans, permis et autres documents sur demande. Lot numéro 2 du plan cadastral. Tous les raccordements ( eau, élec, gaz, égouts,…) sont à charge de l’acheteur. Venez découvrir ce terrain et laissez-vous séduire par son potentiel unique ! Faire offre à partir de 89.000€ (sous réserve de l'acceptation du propriétaire). Visites sur rdv au 0476622046
Type vastgoed Grond
Prijs 89.000