Te koop VILLABOUWGROND met een opp. van 11,49 are

Beschrijving van   

Vergelijk realty's

Te koop VILLABOUWGROND met een opp. van 11,49 are

VILLABOUWGROND met een opp. van 11,49 are VILLABOUWGROND met een opp. van 11,49 are VILLABOUWGROND met een opp. van 11,49 are VILLABOUWGROND met een opp. van 11,49 are
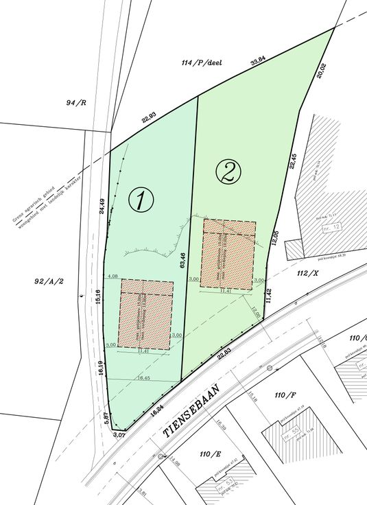
Zeer landelijk gelegen VILLABOUWGROND (lot 1) met een oppervlakte van 11,49 are en een wijds vergezicht op de weilanden en akkers. Met een straatbreedte van 16,24m en een zuidoost georiênteerde tuin, is deze bouwgrond een opportuniteit. Er is geen bouwverplichting! De maximale bewoonbare oppervlakte voor een nieuwbouw woning bedraagt 308m² (+ ev. zolder en kelder), de maximale bebouwde grondoppervlakte van een nieuwbouw woning is 171,15 m². Bouwvoorschriften : de woning moet ingeplant worden op 12m uit de as van de weg en op min. 3m van de zijdelingse perceelsgrenzen, de dakvorm is vrij van keuze. Complementaire bedrijvigheid is eveneens toegestaan tot max 100m². Plan in pdf vindt u op www.cdsimmo.be onder 'downloads'. VP 190.000 EUR. Voor meer informatie bel op 016/620105 of mail naar info@cdsimmo.be. Wenst u ook uw woning, appartement of bouwgrond snel en aan een marktconforme prijs te verkopen, neem dan zeker even contact op voor een GRATIS SCHATTING ! Bel Anouck voor een vrijblijvende afspraak op 0497/58.11.18. Renovatieplicht: onbekend
Type vastgoed Grond
Prijs 190.000