Te huur Uitstekend, energiezuinig appartement met ...

Beschrijving van   

Vergelijk realty's

Te huur Uitstekend, energiezuinig appartement met twee slaapkamers,

Uitstekend, energiezuinig appartement met twee slaapkamers, Uitstekend, energiezuinig appartement met twee slaapkamers, Uitstekend, energiezuinig appartement met twee slaapkamers, Uitstekend, energiezuinig appartement met twee slaapkamers, Uitstekend, energiezuinig appartement met twee slaapkamers, Uitstekend, energiezuinig appartement met twee slaapkamers, Uitstekend, energiezuinig appartement met twee slaapkamers, Uitstekend, energiezuinig appartement met twee slaapkamers, Uitstekend, energiezuinig appartement met twee slaapkamers, Uitstekend, energiezuinig appartement met twee slaapkamers, Uitstekend, energiezuinig appartement met twee slaapkamers, Uitstekend, energiezuinig appartement met twee slaapkamers, Uitstekend, energiezuinig appartement met twee slaapkamers, Uitstekend, energiezuinig appartement met twee slaapkamers,
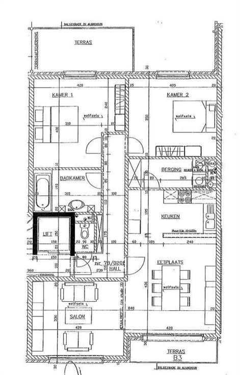
Ruim appartement met twee slaapkamers, terras en garage. Dit uitstekend onderhouden appartement is als volgt ingedeeld: inkomhal, afzonderlijk toilet, ruime leefruimte met veel lichtinval en toegang tot terras aan voorzijde, eetplaats en uitgeruste keuken met aanpalende, functionele berging. Badkamer met inloopdouche. Er zijn twee ruime slaapkamers, waarvan één met terras langs de achterzijde van het gebouw. Zowel aan voorzijde als aan achterzijde een prachtig verte zicht. Privé parkeerplaats (nr. 02) in garage met elektrische garagepoort. Privé kelder/opslagruimte voorzien. Lift aanwezig in het gebouw. Waterverzachter aanwezig in het appartement. De lasten omvatten een provisie voor de gemeenschappelijke kosten.
Type vastgoed Appartement
Prijs 770
Bewoonbare opp. 102
Aantal slaapkamers 2