Deze opbrengsteigendom bevindt zich op een toplocatie voor studenten, met tal van voorzieningen in de buurt en vlakbij verschillende campussen. De rustige en aangename buurt heeft een uitstekende bereikbaarheid.
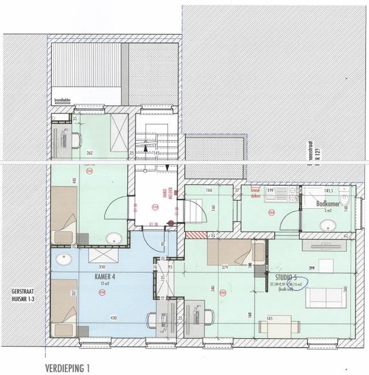
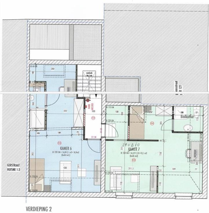
Het pand heeft een bebouwde oppervlakte van 76m² en bestaat uit 6 entiteiten: 3 studentenkamers die gezamenlijk gebruik maken van een leefruimte, keuken, badkamer en apart toilet en 3 studio’s. De studio’s beschikken over een eigen badkamer (toilet en douche) en kitchenette.
Het pand beschikt over een conformiteitsattest van Stad Gent. Dankzij de EPC-attesten met scores van C en D, is er geen renovatieplicht. De 6 studentenkamers verkeren in goede staat en zijn momenteel verhuurd, wat zorgt voor directe huurinkomsten.
studio 7: EPC D (25,1m²)
studio 5 bus 101: EPC C (30,15m²)
studio 5 bus 201: EPC D (18,1m²)
3 kamers 5 bus 001: EPC C (12,2m², 13m², 18,9m²)
Alle entiteiten zijn asbestveilig.
Kortom, bent u opzoek naar een stabiel opbrengsteigendom nabij centrum Gent, neem dan zeker contact met ons op!