Te koop Bouwgrond

Beschrijving van   

Vergelijk realty's

Te koop Bouwgrond

Bouwgrond Bouwgrond Bouwgrond
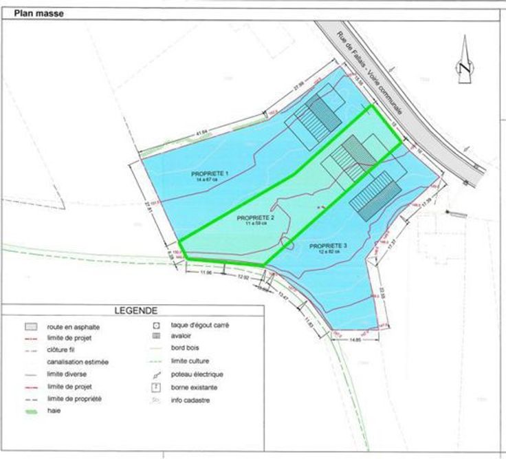
Situé dans le charmant village de Vieux-Waleffe, ce terrain d’une superficie d’environ 1159 m² constitue une opportunité unique pour la construction d’une maison quatre façades. Bénéficiant d’un permis d’urbanisation, il offre de nombreuses possibilités architecturales pour créer un espace de vie adapté à vos envies. Le terrain se trouve dans un environnement calme et verdoyant, idéal pour profiter de la sérénité de la campagne tout en étant à proximité de toutes les commodités nécessaires. Son emplacement stratégique permet un accès rapide aux grands axes routiers, notamment une autoroute et une voie rapide situées à quelques minutes seulement. Ce cadre exceptionnel, mêlant tranquillité et accessibilité, fait de ce terrain un choix parfait pour construire la maison de vos rêves. La région est appréciée pour son atmosphère conviviale et son cadre naturel, offrant une qualité de vie idéale pour les familles ou les personnes recherchant un environnement paisible. Pour plus amples informations : 0478/55 07 38 d.scifo@foncium.be Avec Foncium, ça fonctionne !
Type vastgoed Grond
Prijs 99.000