Te koop Instapklare woning met mogelijkheid tot 4 ...

Beschrijving van   

Vergelijk realty's

Te koop Instapklare woning met mogelijkheid tot 4 slaapkamers

Instapklare woning met mogelijkheid tot 4 slaapkamers Instapklare woning met mogelijkheid tot 4 slaapkamers Instapklare woning met mogelijkheid tot 4 slaapkamers Instapklare woning met mogelijkheid tot 4 slaapkamers Instapklare woning met mogelijkheid tot 4 slaapkamers Instapklare woning met mogelijkheid tot 4 slaapkamers Instapklare woning met mogelijkheid tot 4 slaapkamers Instapklare woning met mogelijkheid tot 4 slaapkamers Instapklare woning met mogelijkheid tot 4 slaapkamers Instapklare woning met mogelijkheid tot 4 slaapkamers Instapklare woning met mogelijkheid tot 4 slaapkamers Instapklare woning met mogelijkheid tot 4 slaapkamers Instapklare woning met mogelijkheid tot 4 slaapkamers Instapklare woning met mogelijkheid tot 4 slaapkamers Instapklare woning met mogelijkheid tot 4 slaapkamers Instapklare woning met mogelijkheid tot 4 slaapkamers Instapklare woning met mogelijkheid tot 4 slaapkamers
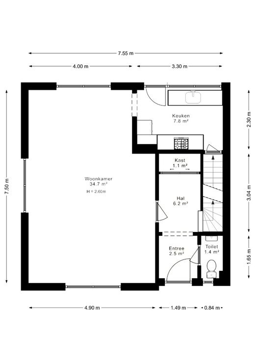
Troeven: Volledig opgefrist Elektriciteit in orde 3 slaapkamers en mogelijkheid om de zolder volledig in te richten Enorm veel opbergruimte in de kelder In Grimbergen op wandelafstand van het centrum, vinden we deze mooi opgefriste driegevel terug die klaar is voor zijn nieuwe eigenaars. De woning werd gebouwd in 1971 en werd opgefrist naar hedendaagse normen. De woning beschikt over een bewoonbaar oppervlakte van +/- 180m² en is voorzien van 3 slaapkamers (20m², 15m² en 8m²). De zolder van +/- 40m² kan perfect nog worden omgevormd naar een extra slaapkamer en eventueel een badkamer.Ook opbergruimte is geen probleem in deze woning. Er is een zeer praktische kelder aanwezig met een aparte toegang tot buiten die de hele oppervlakte van de woning telt. De woning is voorzien van voldoende staanplaatsen en een garage. De ligging van de woning is ideaal. Tussen handelszaken, op korte afstand naar scholen, winkels en openbaar vervoer, maar ook niet ver van mooie wandelplekken. Kom nu zeker en vast deze woning ontdekken.
Type vastgoed Huis
Prijs 469.000
Bewoonbare opp. 180
Aantal slaapkamers 3
Aantal badkamers 1