Te koop Grote, polyvalente woning met dubbele gara...

Beschrijving van   

Vergelijk realty's

Te koop Grote, polyvalente woning met dubbele garagebox

Grote, polyvalente woning met dubbele garagebox Grote, polyvalente woning met dubbele garagebox Grote, polyvalente woning met dubbele garagebox Grote, polyvalente woning met dubbele garagebox Grote, polyvalente woning met dubbele garagebox Grote, polyvalente woning met dubbele garagebox Grote, polyvalente woning met dubbele garagebox Grote, polyvalente woning met dubbele garagebox Grote, polyvalente woning met dubbele garagebox Grote, polyvalente woning met dubbele garagebox Grote, polyvalente woning met dubbele garagebox Grote, polyvalente woning met dubbele garagebox Grote, polyvalente woning met dubbele garagebox Grote, polyvalente woning met dubbele garagebox Grote, polyvalente woning met dubbele garagebox Grote, polyvalente woning met dubbele garagebox Grote, polyvalente woning met dubbele garagebox Grote, polyvalente woning met dubbele garagebox Grote, polyvalente woning met dubbele garagebox Grote, polyvalente woning met dubbele garagebox Grote, polyvalente woning met dubbele garagebox Grote, polyvalente woning met dubbele garagebox Grote, polyvalente woning met dubbele garagebox Grote, polyvalente woning met dubbele garagebox Grote, polyvalente woning met dubbele garagebox Grote, polyvalente woning met dubbele garagebox Grote, polyvalente woning met dubbele garagebox Grote, polyvalente woning met dubbele garagebox Grote, polyvalente woning met dubbele garagebox
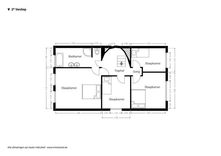
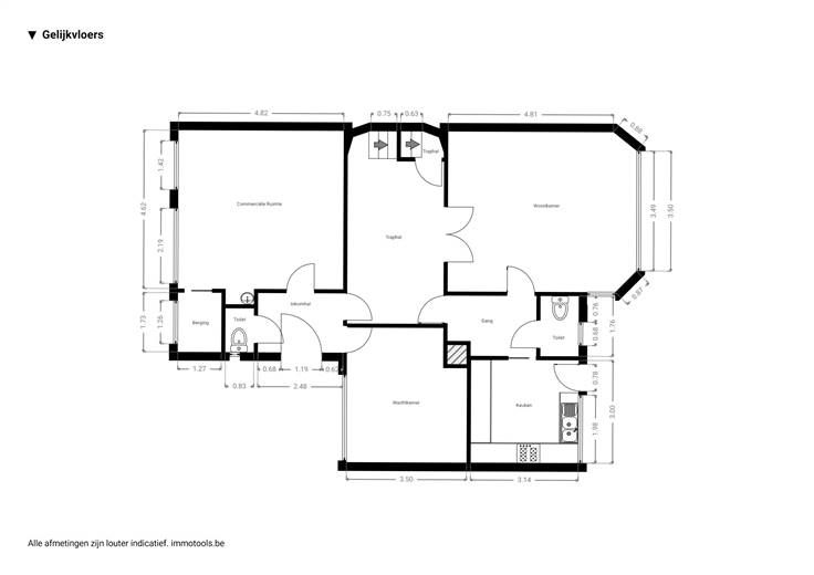
Wonen in een voormalige dokterswoning betekent véél ruimte, met plaats voor 6 kamers, originele elementen, tuin, oprit én nog een dubbele garagebox achteraan. Via de voordeur die zich aan de zijkant bevindt kom je binnen in een eerste inkomhal die toegang geeft tot een wachtzaal, apart toilet en praktijkruimte met een berging ernaast. Je hebt ook een private inkomhal met een draaitrap, zwart-wit marmeren tegels en art decodeuren met glas in lood. De dubbele deur geeft toegang tot de achterliggende leefruimte. Via de hal ernaast heb je de U-vormige keuken met zwart granieten werkblad, houten frontjes en witte metrotegels tegen de muur. Je hebt hier een 4-pits gasvuur met extra keramische plaat, ingewerkte dampkap, dubbele spoelbak, oven, vaatwasser en kastruimte. Via de achterdeur stap je het overdekte terras op. De tuin zelf is deels betegeld met klinkers, heeft groene borders, een kleine vijver en een houten pad dat leidt naar de twee garageboxen achteraan -inclusief sectionale poorten. Op de eerste verdieping heb je de leefruimte, met visgraatparket, ingemaakte kasten, een originele schouw en terras. Op de tweede verdieping heb je vier lichte slaapkamers. De betegelde badkamer heeft een ligbad, dubbele lavabo, spiegelkasten, douchecabine en een toilet. Je woont hier supercentraal, met alles op wandelafstand en op enkele minuten de groene Hobokense Polder waar het heerlijk wandelen is. Meer info: https://www.immovasta.be/panden/gegevens/13726/
Type vastgoed Huis
Prijs 595.000
Bewoonbare opp. 315
Aantal slaapkamers 4
Aantal badkamers 1