Te koop Woning met veel potentieel op centrale loc...

Beschrijving van   

Vergelijk realty's

Te koop Woning met veel potentieel op centrale locatie

Woning met veel potentieel op centrale locatie Woning met veel potentieel op centrale locatie Woning met veel potentieel op centrale locatie Woning met veel potentieel op centrale locatie Woning met veel potentieel op centrale locatie Woning met veel potentieel op centrale locatie Woning met veel potentieel op centrale locatie Woning met veel potentieel op centrale locatie Woning met veel potentieel op centrale locatie Woning met veel potentieel op centrale locatie Woning met veel potentieel op centrale locatie Woning met veel potentieel op centrale locatie
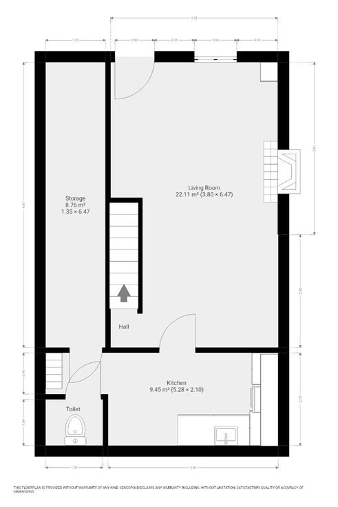
Ben je op zoek naar een goed gelegen woning met veel potentieel, die je nog kan renoveren naar eigen smaak! Lees dan zeker verder! De goede rustige ligging, de lichtinval en de ruime slaapkamers zijn slechts enkele troeven van deze mooie woning.  Indeling: - GLV: we komen binnen in de leefruimte (22m²). Aansluitend vinden we de keuken (9m²) voorzien van ingemaakte kasten, oven en een kookplaat. Verder vinden we de berging/garage (9m²) met voldoende ruimte als stockage. Ook is er nog een aparte toilet aanwezig beneden. - 1steV: langs de traphal (2m²) hebben we toegang tot 2 slaapkamers (16-9m²) en de badkamer (4m²), met douche, lavabo en een tweede toilet. Bij deze verkoop is de renovatieverplichting van toepassing. De koper heeft 5 jaar de tijd om de woning energetisch te renoveren tot energielabel D of beter. Is dit jouw droomwoning en zie je voldoende potentieel om te renoveren? Neem dan snel contact op met ons kantoor!
Type vastgoed Huis
Prijs 99.000
Bewoonbare opp. 80
Aantal slaapkamers 2
Aantal badkamers 1