Te koop TE RENOVEREN WOONHUIS

Beschrijving van   

Vergelijk realty's

Te koop TE RENOVEREN WOONHUIS

TE RENOVEREN WOONHUIS TE RENOVEREN WOONHUIS TE RENOVEREN WOONHUIS TE RENOVEREN WOONHUIS TE RENOVEREN WOONHUIS TE RENOVEREN WOONHUIS TE RENOVEREN WOONHUIS TE RENOVEREN WOONHUIS TE RENOVEREN WOONHUIS TE RENOVEREN WOONHUIS TE RENOVEREN WOONHUIS TE RENOVEREN WOONHUIS TE RENOVEREN WOONHUIS TE RENOVEREN WOONHUIS TE RENOVEREN WOONHUIS TE RENOVEREN WOONHUIS TE RENOVEREN WOONHUIS TE RENOVEREN WOONHUIS TE RENOVEREN WOONHUIS TE RENOVEREN WOONHUIS TE RENOVEREN WOONHUIS TE RENOVEREN WOONHUIS
Dit pand wordt op internet verkocht van 10/02/2025 tot 18/02/2025. Op een rustige ligging. Met een prachtig uitzicht over weilanden en toch dicht bij het centrum. Renovatieverplichting van toepassing. Wg, Vg, Gmo, Gvkr, Gvv. G score: A P score: A
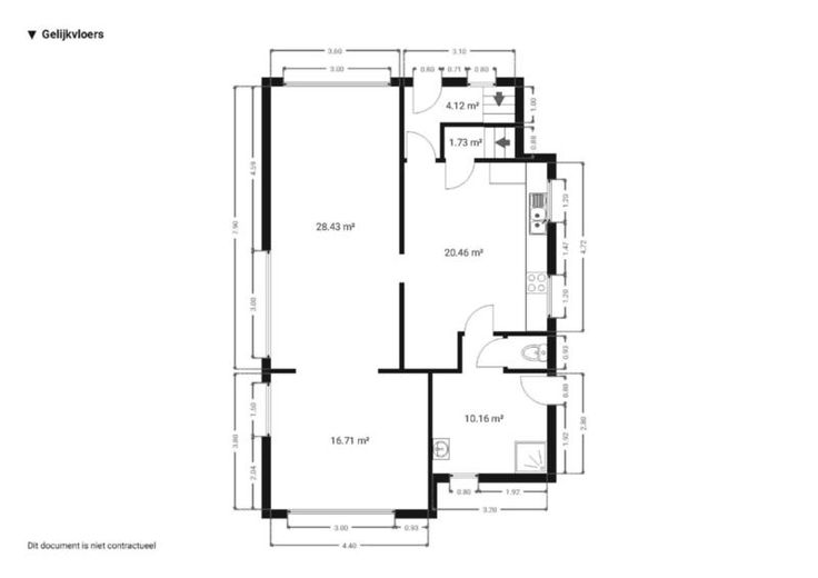
Type vastgoed Huis
Prijs 225.000
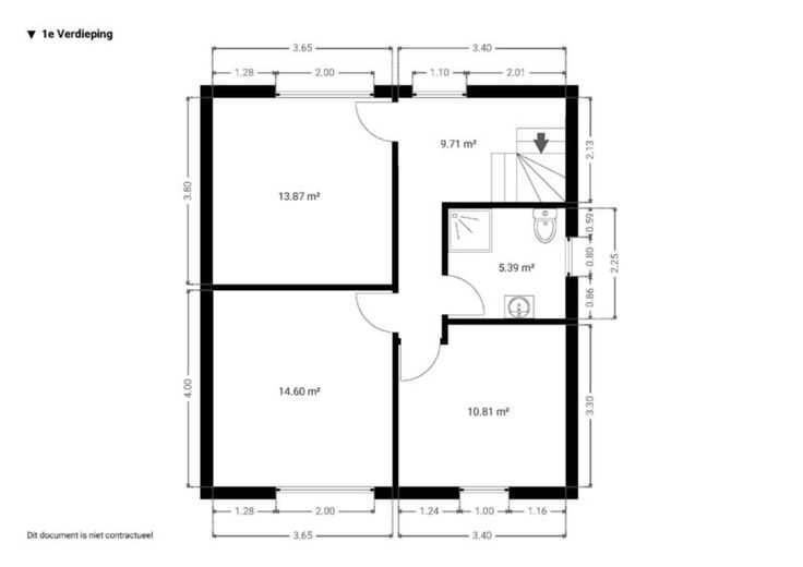
Aantal slaapkamers 3
Aantal badkamers 1