Te koop Nieuwbouwwoning met 3 slpkmrs & inpandige garage
Nieuw te bouwen energiezuinige halfopen bebouwing op een perceel van 150 m², gelegen in het rustige Appels, deelgemeente van Dendermonde.
De locatie biedt prachtige wandelmogelijkheden langs de Schelde en Dender om zalig te ontspannen na een drukke (werk)week.
Zoek je graag de drukte en gezelligheid op? Dan is Dendermonde zeker de moeite waard om te bezoeken met zijn talloze restaurants, shoppingsmogelijkheden en bezienswaardigheden.
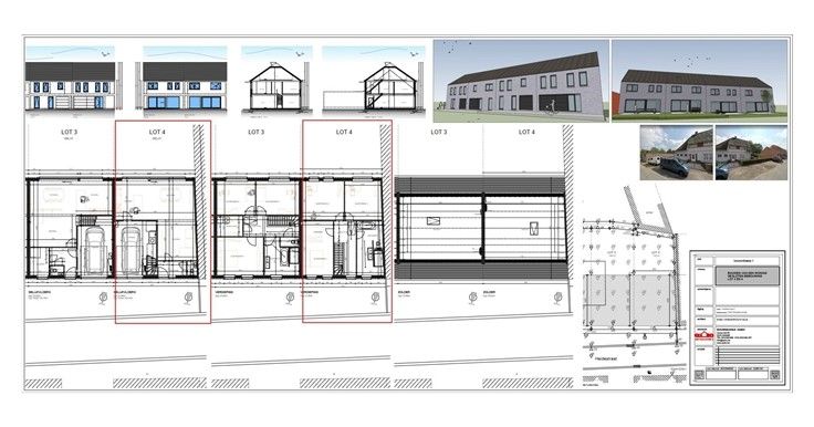
Het ontwerp omvat op het gelijkvloers: inkomhal, toilet, eet- en zithoek, keuken en inpandige garage.
Op de 1ste verdieping bevindt zich een nachthal, 3 slaapkamers & badkamer met dubbele wastafel, toilet , bad en douche.
De ruime zolder biedt nog vele mogelijkheden. Er wordt gewerkt met duurzame materialen om te voldoen aan de energieregelgeving van max E30-S28.
Het technisch lastenboek met alle details bekijken we samen met u.
Wenst u meer info of graag een afspraak?
Wij nemen graag de tijd om het ontwerp & alle mogelijkheden qua afwerking te bespreken.
Bel ons op 052/ 50 50 00.
Tot snel!