Te huur Industriële gebouwen

Beschrijving van   

Vergelijk realty's

Te huur Industriële gebouwen

Industriële gebouwen Industriële gebouwen Industriële gebouwen Industriële gebouwen Industriële gebouwen Industriële gebouwen Industriële gebouwen Industriële gebouwen Industriële gebouwen
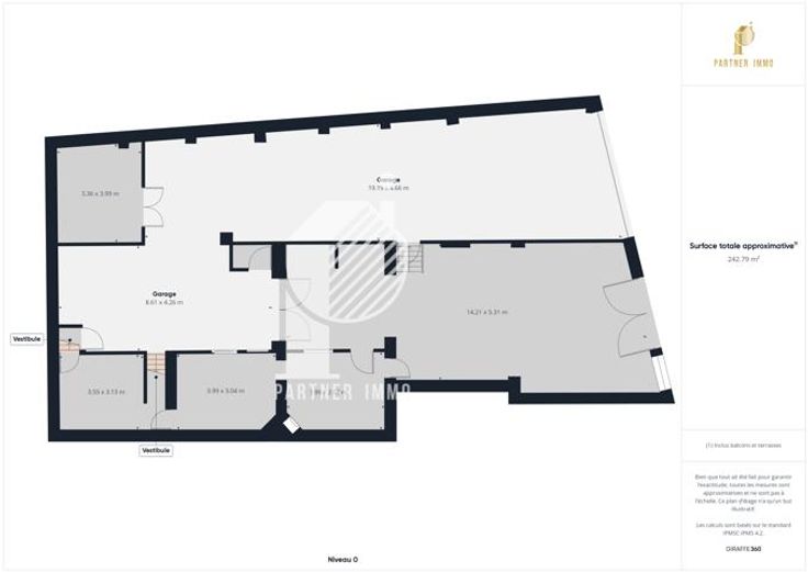
À louer : Grand atelier / garage de 242,79 m² Découvrez cet espace exceptionnel à louer, idéal pour un atelier professionnel, un garage ou une combinaison des deux. Situé au rez-de-chaussée, cet espace polyvalent offre un cadre spacieux et fonctionnel pour répondre à vos besoins. Visite virtuelle disponible -> https://tour.giraffe360.com/e239e4669b2946aa9b322c2af28c1129/ Caractéristiques principales: Surface totale: 242,79 m². Deux grandes zones principales : Garage 1: 19,19 m x 4,66 m. Garage 2: 14,21 m x 5,31 m. Annexes: Différentes pièces polyvalentes. Entrées multiples : Deux vestibules permettant un accès pratique et facile. Hauteur sous plafond généreuse, idéale pour le stockage ou les activités nécessitant un grand volume. Points forts: Facilité d'accès grâce à plusieurs entrées. Grande capacité pour véhicules, équipements ou machines. Emplacement stratégique et pratique pour des activités professionnelles ou personnelles. Cet espace est parfaitement adapté aux artisans, entrepreneurs, ou pour un usage de stockage sécurisé. Il offre également un fort potentiel pour des aménagements sur mesure. Pour plus d'informations ou pour organiser une visite, contactez-nous dès maintenant ! info@partner-immo.be ou par téléphone au 087/35.45.81
Type vastgoed Commercieel
Prijs 700
Bewoonbare opp. 242