Te koop APPARTEMENT 50M² + 1 SLAAPKAMER

Beschrijving van   

Vergelijk realty's

Te koop APPARTEMENT 50M² + 1 SLAAPKAMER

APPARTEMENT 50M² + 1 SLAAPKAMER APPARTEMENT 50M² + 1 SLAAPKAMER APPARTEMENT 50M² + 1 SLAAPKAMER APPARTEMENT 50M² + 1 SLAAPKAMER APPARTEMENT 50M² + 1 SLAAPKAMER APPARTEMENT 50M² + 1 SLAAPKAMER APPARTEMENT 50M² + 1 SLAAPKAMER APPARTEMENT 50M² + 1 SLAAPKAMER
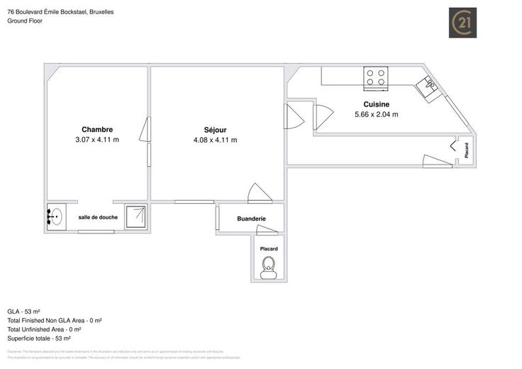
LAKEN (ref. 3939) Gelegen aan de Emile Bockstaellaan, vlakbij alle voorzieningen (winkels, openbaar vervoer, enz.) op de 2e verdieping van een gebouw zonder lasten. Charmant appartement van 50m² bestaande uit een inkomhal met bergin, een woonkamer, een half ingerichte keuken, een slaapkamer van 14m², een douchekamer, een apart toilet, een wasruimte en een kelder. Houten enkele beglazing - VAILLANT individuele verwarmingsketel. Ideaal voor een eerste aankoop of investering. Informatie of bezichtiging 02/424.21.21
Type vastgoed Appartement
Prijs 159.000
Bewoonbare opp. 50
Aantal slaapkamers 1