Te koop Bouwgrond met vergund bouwplan

Beschrijving van   

Vergelijk realty's

Te koop Bouwgrond met vergund bouwplan

Bouwgrond met vergund bouwplan Bouwgrond met vergund bouwplan Bouwgrond met vergund bouwplan Bouwgrond met vergund bouwplan Bouwgrond met vergund bouwplan Bouwgrond met vergund bouwplan Bouwgrond met vergund bouwplan Bouwgrond met vergund bouwplan Bouwgrond met vergund bouwplan Bouwgrond met vergund bouwplan Bouwgrond met vergund bouwplan Bouwgrond met vergund bouwplan Bouwgrond met vergund bouwplan Bouwgrond met vergund bouwplan Bouwgrond met vergund bouwplan
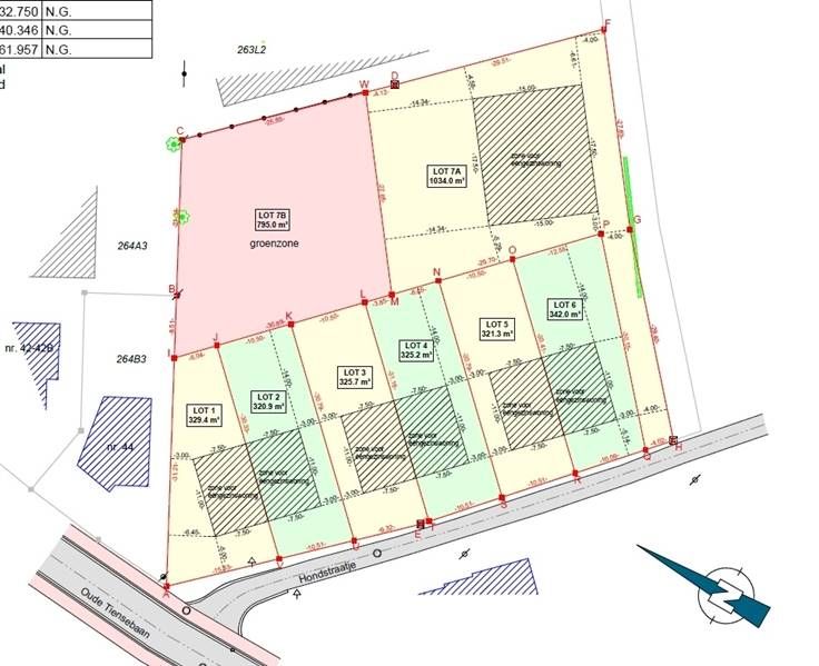
In het rustige en charmante Hondstraatje in Bekkevoort ligt deze bouwgrond van 3a20ca met een reeds goedgekeurd bouwplan. Dit perceel biedt u de unieke kans om een moderne, energiezuinige woning te realiseren volgens een zorgvuldig ontworpen plan. Met een ideale ligging, op een boogscheut van de E314 en andere invalswegen, combineert deze locatie de landelijke charme van Bekkevoort met een uitstekende bereikbaarheid. Het vergunde bouwplan voorziet in een stijlvolle woning met een tijdloze architectuur en een doordachte indeling die perfect aansluit bij de behoeften van een modern gezin. De woning omvat een ruime leefruimte met een open keuken, drie comfortabele slaapkamers, een badkamer met zowel een douche als een ligbad. Daarnaast is er een praktische berging die kan worden omgevormd tot een tweede badkamer, een apart nachttoilet en een ruime zolder.Deze bouwgrond biedt u de kans om een droomwoning te realiseren zonder de administratieve zorgen die vaak gepaard gaan met een vergunningsaanvraag. Met een goedgekeurd bouwplan dat klaar is om te worden uitgevoerd, staat niets u in de weg om uw eigen stukje paradijs te creëren in het hart van Bekkevoort. Heeft u interesse in dit unieke aanbod? Neem dan vandaag nog contact op via www.lissens.be voor meer informatie of een verkennend gesprek. Bouwplannen inkijken mogelijk na afspraak.
Type vastgoed Grond
Prijs 135.000