Te koop Appartement

Beschrijving van   

Vergelijk realty's

Te koop Appartement

Appartement Appartement Appartement Appartement Appartement Appartement Appartement Appartement Appartement Appartement Appartement Appartement Appartement Appartement Appartement Appartement Appartement Appartement Appartement
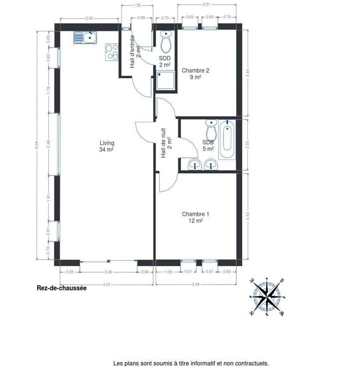
L'immobilière Cosse biedt te koop aan een charmant appartement ideaal gelegen in een vakantiedorp op 2 km van Durbuy.(Atlas plus type) Het bestaat uit een inkomhal en een ruime woonkamer, een volledig uitgeruste keuken, een grote slaapkamer die plaats biedt aan een tweepersoonsbed en een tweede slaapkamer die plaats biedt aan twee eenpersoonsbedden, een doucheruimte en een badkamer. Je hebt de mogelijkheid om twee extra personen op een slaapbank te laten slapen. Er is ook een aangenaam terras
Type vastgoed Appartement
Prijs 179.000
Bewoonbare opp. 77
Aantal slaapkamers 2
Aantal badkamers 1