Te koop Bijzonder ruime woning, pal in het centrum

Beschrijving van   

Vergelijk realty's

Te koop Bijzonder ruime woning, pal in het centrum

Bijzonder ruime woning, pal in het centrum Bijzonder ruime woning, pal in het centrum Bijzonder ruime woning, pal in het centrum Bijzonder ruime woning, pal in het centrum Bijzonder ruime woning, pal in het centrum Bijzonder ruime woning, pal in het centrum Bijzonder ruime woning, pal in het centrum Bijzonder ruime woning, pal in het centrum Bijzonder ruime woning, pal in het centrum Bijzonder ruime woning, pal in het centrum Bijzonder ruime woning, pal in het centrum Bijzonder ruime woning, pal in het centrum
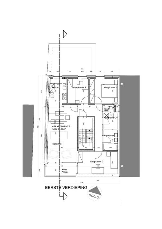
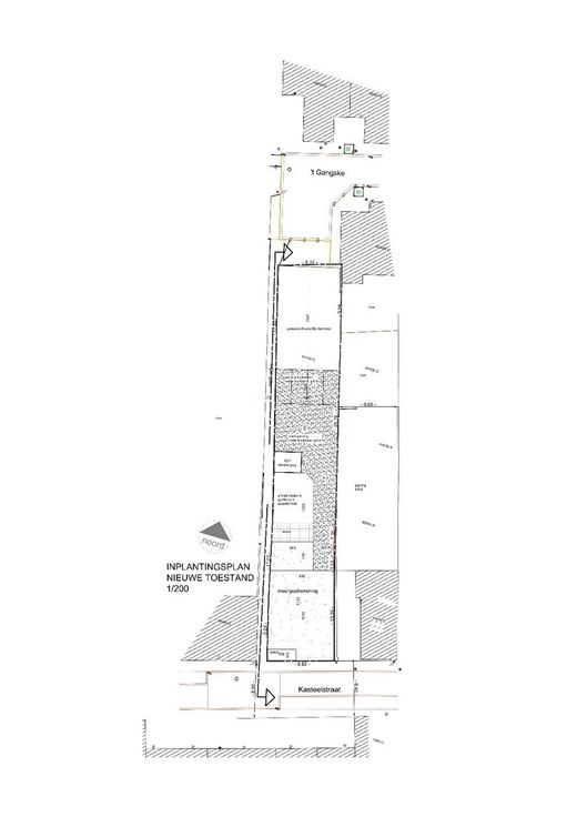
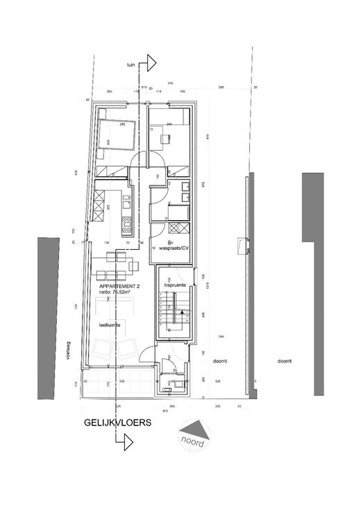
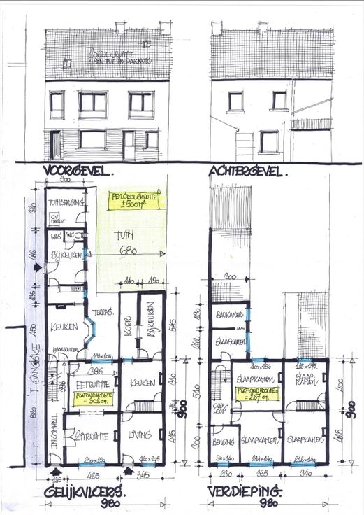
Deze te renoveren eigendom is bijzonder centraal gelegen in het centrum van Lendelede INDELING: 2 aparte inkomdeuren: aan de rechterzijde is een kleinere aparte woning met 2 slaapkamers, die voorheen dienst deed als verzekeringskantoor aan de linkerzijde is een ruime woning met 4 slaapkamers, de bovenverdiepingen lopen over in elkaar. Diepe tuin met uitweg OPMERKING: Er werd een vergunning afgeleverd voor het bouwen van 3 appartementen met 4 parkeerplaatsen. Het geheel is dus ook geschikt voor projectontwikkeling.
Type vastgoed Huis
Prijs 195.000
Bewoonbare opp. 290
Aantal slaapkamers 5