Te koop Nieuwbouwwoning te Glabbeek

Beschrijving van   

Vergelijk realty's

Te koop Nieuwbouwwoning te Glabbeek

Nieuwbouwwoning te Glabbeek Nieuwbouwwoning te Glabbeek Nieuwbouwwoning te Glabbeek Nieuwbouwwoning te Glabbeek Nieuwbouwwoning te Glabbeek
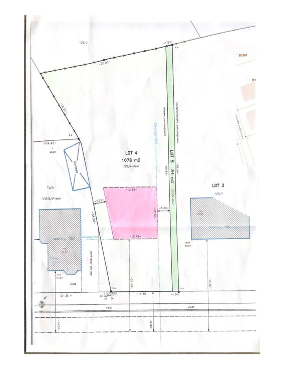
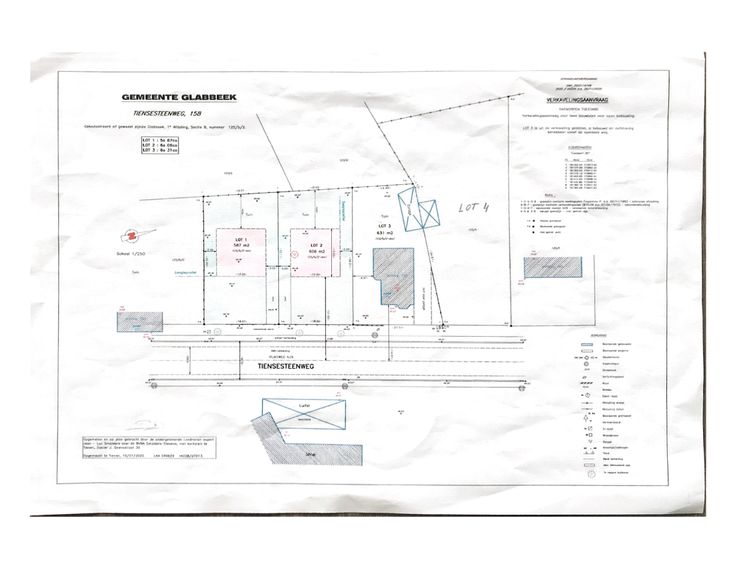
Prachtige landelijke woning nog te bouwen in Glabbeek op de Tiensesteenweg op een ruime bouwgrond van 1078 m2 . De charmante woning Nachtzwaluw biedt u 157 m2 op het gelijkvloers en de 1ste verdieping. De dakverdieping van 56 m2 kan nog verder ingericht worden met extra slaapkamers, bureel, hobbyruimte bovenop een bergruimte. De trap is alvast voorzien. De woning kan volledig sleutel op de deur gerealiseerd worden of u kan de afwerking zelf realiseren. Vanaf deze casco+ afwerking geniet je alvast van alle zekerheden, garanties alsook de vaste prijs.  Dankzij een samenwerking met een architect, kan deze woning nog naar wens aangepast worden of kan er een woning volledig op maat ontworpen worden. We geven je graag uitgebreid uitleg in een persoonlijk gesprek. Casco afwerking: Ruwbouw winddicht Sanitaire leidingen (inclusief hergebruik van regenwater). Elektriciteit Verwarming op luchtwater warmtepomp met vloerverwarming Pleisterwerken Isolatiewerken en chape EPB berekening Ventilatiesysteem D+ zonnepanelen Kostprijs architect en veiligheidscoördinatie inclusief Sleutel op de deur afwerking: Casco Afgewerkte keuken Sanitaire toestellen Tegelvloeren op het gelijkvloers en in de badkamer Binnendeuren Voegwerken Trap in rubberwood PRIJS CASCO € 454 000 excl. alle kosten op grond en constructie € 538 000 incl. alle kosten op grond en constructie PRIJS SLEUTEL OP DE DEUR € 484 000 excl. alle kosten op grond en constructie € 574 000 incl. alle kosten op grond en constructie
Type vastgoed Huis
Prijs 454.000
Bewoonbare opp. 157
Aantal slaapkamers 3
Aantal badkamers 1