Te koop Huis

Beschrijving van   

Vergelijk realty's

Te koop Huis

Huis Huis Huis Huis Huis Huis Huis Huis Huis Huis Huis Huis Huis Huis Huis Huis Huis Huis Huis Huis Huis Huis Huis Huis Huis
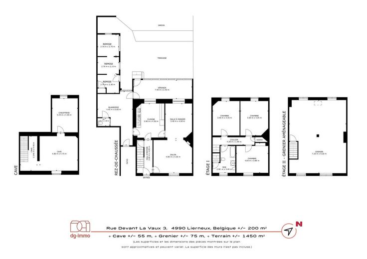
Découvrez cette charmante maison villageoise située à proximité directe du centre de Lierneux, tout en bénéficiant de la tranquilité d'une rue calme et peu fréquentée. Elle se compose au rez-de-chaussée d'un séjour avec cassette à bois, d'une cuisine équipée, d'une grande buanderie et d'une veranda. Au premier étage, 3 chambres spacieuses et une salle de bains. Au deuxième étage, vaste grenier aménageable, sur toute la surface de la maison. Cette maison bénéficie également de grandes caves, d'un vaste jardin plat avec vue dégagée, d'une belle terrasse, d'un abri de jardin et diverses remises dont une avec barbecue. Contactez nous sans attendre au 0477 43 68 92 pour de plus amples informations ou pour organiser une visite. Déscriptif donné à titre d'information. Les informations qui y figurent ne sauraient être des clauses contractuelles.
Type vastgoed Huis
Prijs 220.000
Bewoonbare opp. 200
Aantal slaapkamers 3
Aantal badkamers 1