Te koop Huis voor renovatieproject te koop in Puld...

Beschrijving van   

Vergelijk realty's

Te koop Huis voor renovatieproject te koop in Pulderbos!

Huis voor renovatieproject te koop in Pulderbos! Huis voor renovatieproject te koop in Pulderbos! Huis voor renovatieproject te koop in Pulderbos! Huis voor renovatieproject te koop in Pulderbos! Huis voor renovatieproject te koop in Pulderbos! Huis voor renovatieproject te koop in Pulderbos! Huis voor renovatieproject te koop in Pulderbos! Huis voor renovatieproject te koop in Pulderbos! Huis voor renovatieproject te koop in Pulderbos!
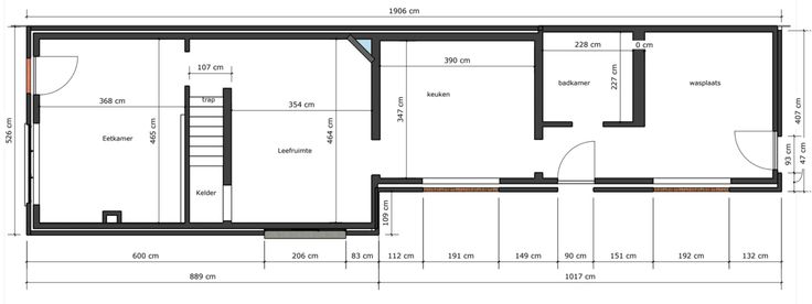
Kenmerken: Type woning: Eengezinswoning voor renovatieproject Prijs: € 285.000 Locatie: Lindelaan 36, 2242 PULDERBOS Oppervlakte: 450 m² Bewoonbare oppervlakte: 147 m² Bouwjaar: 1960 Energielabel: F Beschrijving: Hoewel de woning volledig gerenoveerd dient te worden, biedt ze enorm veel potentieel op een zeer fijne locatie in Pulderbos. Bent u op zoek naar een een interessante kans met veel potentieel? Momenteel staat er een stacaravan met 3 slaapkamers in de tuin die eventueel bij aangekocht kan worden voor 25.000€. Omgeving: De woning is gelegen dichtbij de toegang tot E313 (Massenhoven) en E34 (Zoersel/Oelegem) EPC: F Code: 20241226-0003491260-RES-1 Contact: 03-320.26.50 - info@century21vyta.be
Type vastgoed Huis
Prijs 285.000
Bewoonbare opp. 147
Aantal slaapkamers 2
Aantal badkamers 1