Te koop Bouwgrond voor HOB met mooi verzicht

Beschrijving van   

Vergelijk realty's

Te koop Bouwgrond voor HOB met mooi verzicht

Bouwgrond voor HOB met mooi verzicht Bouwgrond voor HOB met mooi verzicht Bouwgrond voor HOB met mooi verzicht Bouwgrond voor HOB met mooi verzicht
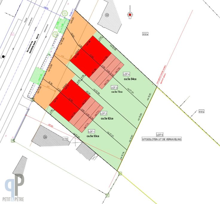
Langs een centrale ligging te Zwalm, vinden we deze bouwgrond voor het optrekken van een halfopen bebouwing gelegen tussen huisnummer 56 en 62. De bouwvoorschriften zijn heel gunstig zowel naar dak keuze als naar bouwvolume. Achteraan is er een mooi verzicht over de velden. Het betreft LOT 2, bouwvoorschriften zijn te verkrijgen op aanvraag via ons kantoor. Voor meer info, contacteer Veronique 0483/676579 Renovatieplicht: onbekend
Type vastgoed Grond
Prijs 149.900