Te koop Energieneutrale gesloten woning met 3 slpks

Beschrijving van   

Vergelijk realty's

Te koop Energieneutrale gesloten woning met 3 slpks

Energieneutrale gesloten woning met 3 slpks Energieneutrale gesloten woning met 3 slpks Energieneutrale gesloten woning met 3 slpks Energieneutrale gesloten woning met 3 slpks
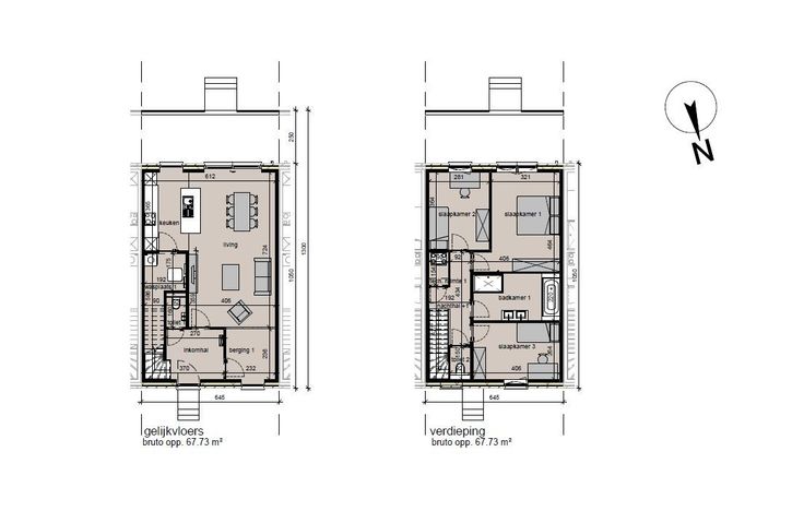
Uiterst energiezuinige woning met de nieuwste technieken (E-peil : -33!). Vraag meer info aan jouw bouwadviseur. Gelijkvloers : bestaande uit een berging (eventuele fietsen), ruime inkomhal met apart toilet, een wasruimte met technieken en living met keuken en eiland. Verdieping: master bedroom en twee bijhorende slaapkamers, ingerichte badkamer. Aparte toilet en technische ruimte met aansluiten nachthal. Bespaar fors op je energiefactuur, dankzij doorgedreven isolatiepakket, warmtepomp met vloerverwarming, ventilatiesysteem D en zonnepanelen, regenwaterput,... deze woning is future proof naar duurzaamheid. Bouwen via de Wet van Breyne met prijsvastheid! Heb je vragen? Contacteer dan je bouwadviseur via het gratis nummer 09 280 60 60 of via info@durabrik.be. * Afbeeldingen en oppervlaktes zijn indicatief. Renovatieplicht: nee
Type vastgoed Huis
Prijs 399.000
Bewoonbare opp. 135
Aantal slaapkamers 3
Aantal badkamers 1