Te koop Grond

Beschrijving van   

Vergelijk realty's

Te koop Grond

Grond Grond Grond Grond Grond Grond Grond Grond Grond Grond Grond Grond Grond Grond Grond Grond
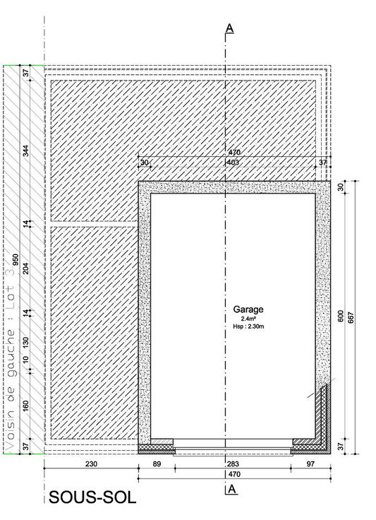
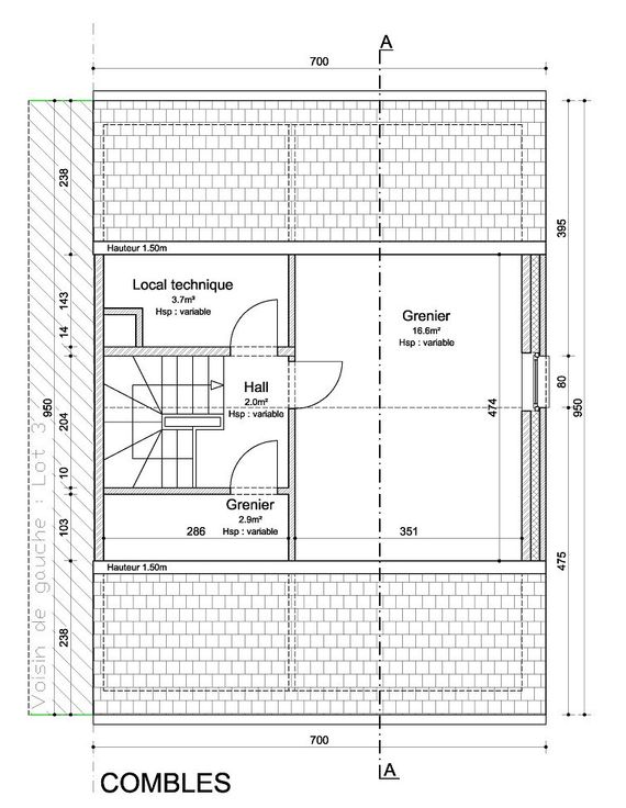
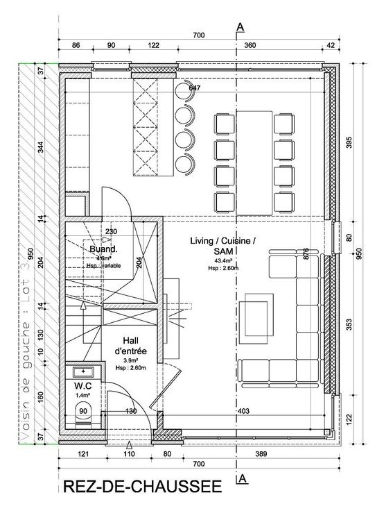
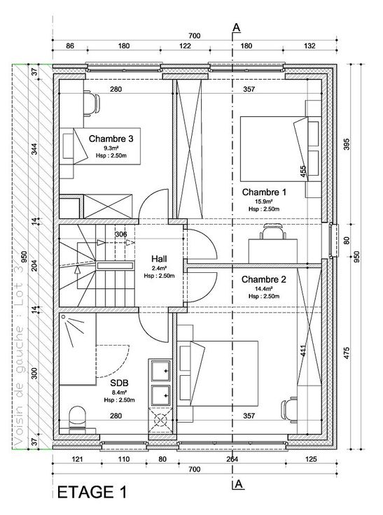
C'est dans le petit village d'Hévillers qu' A-IMMO.BE vous présente en exclusivité cet agréable TERRAIN de 6,2 ares parfaitement orienté "Ouest" arrière avec une vue imprenable sur les campagnes. Ce terrain possède déjà un PERMIS d'urbanisme pour la construction d'une surprenante MAISON 3F composée d'un garage et d'un très beau rez-de-chaussée (pièce de vie 41,4 m²) ouvert vers la terrasse et le jardin. Au 1er étage, le plan permet l'aménagement de 3 belles chambres et d'une salle d'eau avec douche italienne. Au 2ème étage le grenier aménageable attend votre projet. Imaginez-vous déjà dans cette habitation prête à construire avec l'entreprise de votre choix. Le cas échéant, nous pouvons vous transmettre un devis métré estimatif. Complètent avantageusement la description: l'environnement calme & bucolique, le ruisseau en fond de terrain, les impétrants & équipements à front de rue... . N'hésitez pas à nous contacter que ce soit pour tous renseignements complémentaires, recevoir le devis estimatif, planifier une visite et/ou vous accompagner dans les différentes étapes de votre projet (architecte, constructeur, ...). Gaëtan Bougnet se tient à votre meilleure disposition : gb@a-immo.be ou 0485/134.768
Type vastgoed Grond
Prijs 175.000