Te koop Huis

Beschrijving van   

Vergelijk realty's

Te koop Huis

Huis Huis Huis Huis Huis Huis
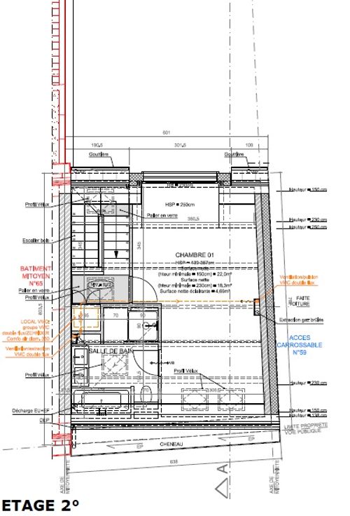
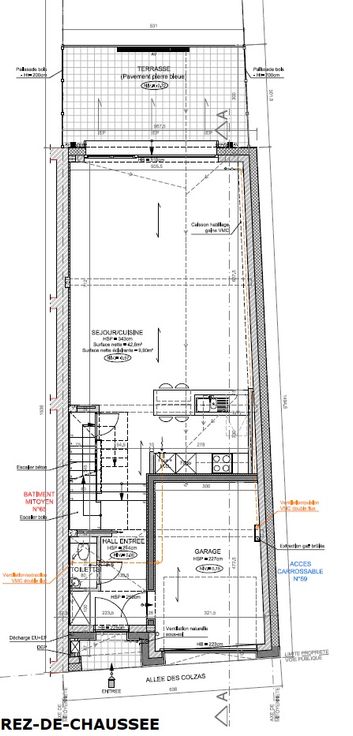
Dans un quartier très agréable d’Auderghem, une rue sans trafic, à proximité des écoles, commerces et transports en commun. Terrain à bâtir avec permis obtenu pour construire une maison de 216 m² (3 niveaux + sous-sol) offrant un grand séjour, 3 chambres, 2 salles de bain et un garage. Jardin de 91 m² orienté Sud-Ouest. Infos & visites au 0495 59 48 31. Pas d’agence SVP, merci de respecter
Type vastgoed Huis
Prijs 399.000
Aantal slaapkamers 3
Aantal badkamers 2