Te huur Appartement/studio in hartje Antwerpen

Beschrijving van   

Vergelijk realty's

Te huur Appartement/studio in hartje Antwerpen

Appartement/studio in hartje Antwerpen Appartement/studio in hartje Antwerpen Appartement/studio in hartje Antwerpen Appartement/studio in hartje Antwerpen Appartement/studio in hartje Antwerpen Appartement/studio in hartje Antwerpen Appartement/studio in hartje Antwerpen Appartement/studio in hartje Antwerpen Appartement/studio in hartje Antwerpen Appartement/studio in hartje Antwerpen Appartement/studio in hartje Antwerpen Appartement/studio in hartje Antwerpen Appartement/studio in hartje Antwerpen Appartement/studio in hartje Antwerpen Appartement/studio in hartje Antwerpen Appartement/studio in hartje Antwerpen
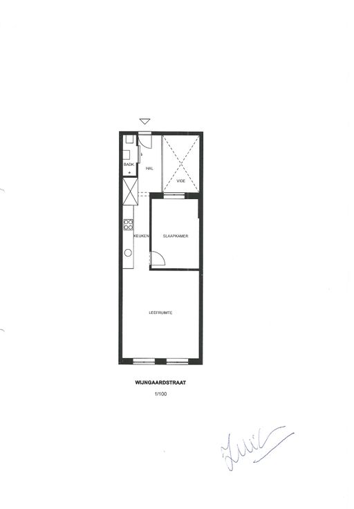
gelegen bij de Grote Markt en het Conscienceplein in het centrum van de oude stad (4° verdieping, lift). Ruime fietsstalling. Ingerichte keuken. Badkamer met douche en toilet.
Type vastgoed Appartement
Prijs 730
Bewoonbare opp. 52
Aantal slaapkamers 1
Aantal badkamers 1