Te koop Bouwgrond voor open bebouwing te Duffel

Beschrijving van   

Vergelijk realty's

Te koop Bouwgrond voor open bebouwing te Duffel

Bouwgrond voor open bebouwing te Duffel Bouwgrond voor open bebouwing te Duffel Bouwgrond voor open bebouwing te Duffel Bouwgrond voor open bebouwing te Duffel
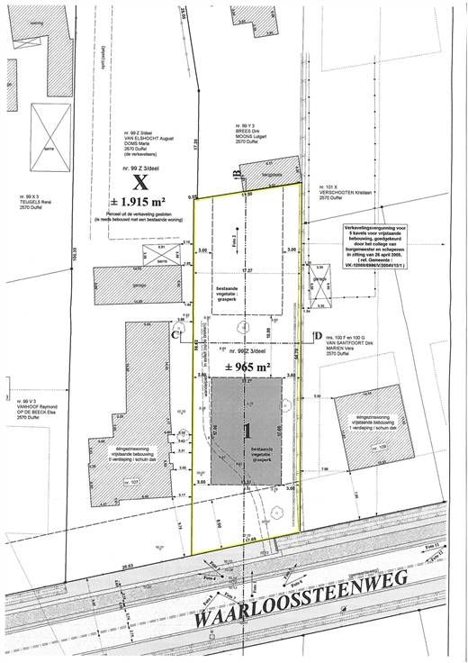
Op zoek naar de ideale plek om uw droomwoning te realiseren? Dit royale perceel van 965 m² biedt alles wat u zoekt: rust, ruimte en een uitstekende bereikbaarheid. Het perceel is bestemd voor de bouw van een vrijstaande eengezinswoning en heeft een gunstige zuidelijke oriëntatie, waardoor u de hele dag kunt genieten van een zonnige tuin. De bebouwbare strook voor het hoofdgebouw meet 11,27 m x 17 m, wat volop mogelijkheden biedt om een woning te creëren die volledig aansluit bij uw wensen. Daarnaast is er ruimte voor bijgebouwen binnen de voorziene bouwstrook, op minimaal 10 meter van de achtergevelbouwlijn tot de achterste perceelsgrens. De gezamenlijke bebouwde oppervlakte voor deze bijgebouwen mag maximaal 75 m² bedragen, wat perfect is voor bijvoorbeeld een garage, tuinhuis of hobbyruimte. Met voldoende ruimte rondom de woning ervaart u hier een gevoel van rust en privacy, terwijl de gunstige ligging zorgt voor een uitstekende verbinding naar nabijgelegen steden en voorzieningen. De uitgeschreven stedenbouwkundige voorschriften zijn opvraagbaar via ons kantoor. Dit perceel biedt u de perfecte kans om uw droomwoning te realiseren op een toplocatie. Neem vandaag nog contact met ons op voor meer informatie via info@vastgoedplus.be of 015/200 999!
Type vastgoed Grond
Prijs 398.000