Te huur Recent gerenoveerd één slaapkamer appartem...

Beschrijving van   

Vergelijk realty's

Te huur Recent gerenoveerd één slaapkamer appartement.

Recent gerenoveerd één slaapkamer appartement. Recent gerenoveerd één slaapkamer appartement. Recent gerenoveerd één slaapkamer appartement. Recent gerenoveerd één slaapkamer appartement. Recent gerenoveerd één slaapkamer appartement. Recent gerenoveerd één slaapkamer appartement. Recent gerenoveerd één slaapkamer appartement. Recent gerenoveerd één slaapkamer appartement. Recent gerenoveerd één slaapkamer appartement. Recent gerenoveerd één slaapkamer appartement. Recent gerenoveerd één slaapkamer appartement. Recent gerenoveerd één slaapkamer appartement. Recent gerenoveerd één slaapkamer appartement. Recent gerenoveerd één slaapkamer appartement. Recent gerenoveerd één slaapkamer appartement. Recent gerenoveerd één slaapkamer appartement. Recent gerenoveerd één slaapkamer appartement. Recent gerenoveerd één slaapkamer appartement.
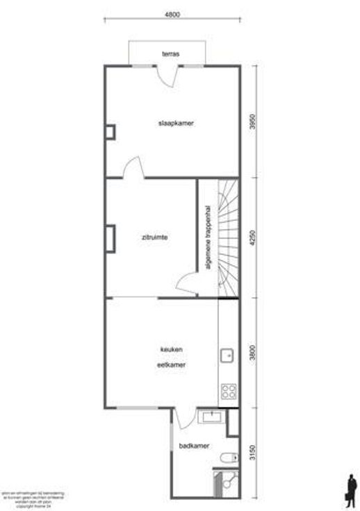
Recent gerenoveerd één slaapkamer appartement in een prachtig gebouw van 1913. GA NAAR WWW.DEBOERENPARTNERS.BE OM RECHTSTREEKS UW ONLINE AFSPRAAK IN TE PLANNEN Dit appartement is ideaal gelegen vlak bij het Rivierenhof en een ideale verbinding naar de stad! Indeling: - Woonkamer - 1 slaapkamer - Volledig geïnstalleerde keuken (kookplaat, oven, vaatwasser,...) - Badkamer met douche, toilet een aansluiting voor was- en droogmachine Bijzonderheden: - Recent vernieuwd - Gunstig EPC - Karaktervol gebouw - kosten 150 euro/maand (inclusief verbruik elektriciteit en verwarming) GA NAAR WWW.DEBOERENPARTNERS.BE OM RECHTSTREEKS UW ONLINE AFSPRAAK IN TE PLANNEN
Type vastgoed Appartement
Prijs 820
Bewoonbare opp. 70
Aantal slaapkamers 1
Aantal badkamers 1