Te koop Lot 5: Ruime nieuwbouwwoning (257 m²) op p...

Beschrijving van   

Vergelijk realty's

Te koop Lot 5: Ruime nieuwbouwwoning (257 m²) op perceel van 876 m²

Lot 5: Ruime nieuwbouwwoning (257 m²) op perceel van 876 m² Lot 5: Ruime nieuwbouwwoning (257 m²) op perceel van 876 m² Lot 5: Ruime nieuwbouwwoning (257 m²) op perceel van 876 m² Lot 5: Ruime nieuwbouwwoning (257 m²) op perceel van 876 m² Lot 5: Ruime nieuwbouwwoning (257 m²) op perceel van 876 m² Lot 5: Ruime nieuwbouwwoning (257 m²) op perceel van 876 m²
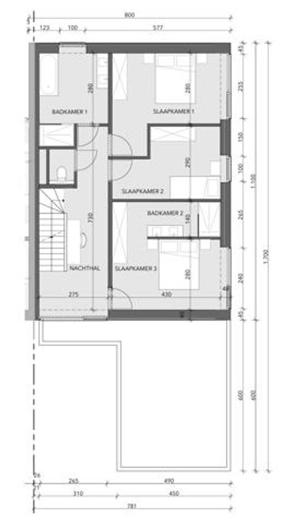
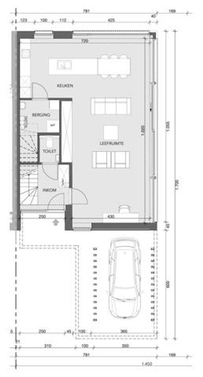
Altro Vastgoed verkoopt Een ruime ( 257 m²) moderne woonst met 4 slaapkamers en 2 badkamers, gelegen op een zonnig georiënteerd perceel van 876 m² met een uitweg naar de Tillegemstraat. Verder beschikt deze energiezuinige (E25) gezinswoning over een afgewerkte zolder, bereikbaar via een vaste trap en een zeer ruime carport.  De statige woonst biedt niet alleen veel licht en leefruimte maar ook een hoogstaand wooncomfort door een riant keukenbudget, parketvloeren op de bovenverdiepingen en vloerverwarming in elke ruimte. De energielevering wordt voorzien door een hoogwaardige geothermische warmtepomp waarmee ook passief kan worden gekoeld op warme zomerdagen. Aangevuld met zonnepanelen en een slim ventilatiesysteem (type D). Ook de buitenzijde is afgewerkt met hoogwaardige materialen en combineren ingetogen grijstinten en bronskleurig aluminium schrijnwerk voor een moderne, architecturale look. Gelegen in het residentiële hart van Sint-Michiels, nabij Tillegembos, de historische binnenstad en de E40 en E403 binnen handbereik. Alle voorzieningen (scholen, sport, bib, winkels, horeca) zijn vlot bereikbaar.  De prijs is de prijs. Bij deze nieuwbouwwoning is er een prijsgarantie: de prijs bij ondertekening van het compromis verandert niet meer. Dat zorgt voor zekerheid. Mis deze kans niet en neem contact op met vastgoedmakelaar Wim Gevaert 0473 70 40 71 (7/7) of wim@altro-vastgoed.be voor meer info of een bezichtiging.
Type vastgoed Huis
Prijs 759.000
Bewoonbare opp. 257
Aantal slaapkamers 4
Aantal badkamers 2