Te koop Energiezuinig appartement met grote tuin v...

Beschrijving van   

Vergelijk realty's

Te koop Energiezuinig appartement met grote tuin vlakbij centrum Le

Energiezuinig appartement met grote tuin vlakbij centrum Le Energiezuinig appartement met grote tuin vlakbij centrum Le Energiezuinig appartement met grote tuin vlakbij centrum Le Energiezuinig appartement met grote tuin vlakbij centrum Le Energiezuinig appartement met grote tuin vlakbij centrum Le Energiezuinig appartement met grote tuin vlakbij centrum Le
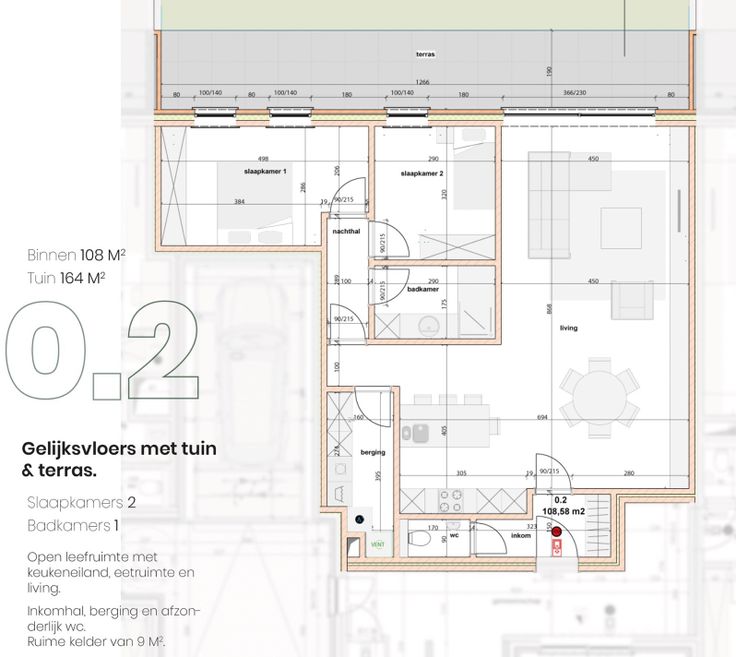
Gelegen in een rustige, groene omgeving op slechts 2 minuten van het bruisende centrum van Leuven, biedt dit prachtige gelijkvloerse appartement een unieke combinatie van rust, ruimte en hoogwaardige afwerking. Met een bewoonbare oppervlakte van 109 m² geniet je van een ruime, lichtrijke leefruimte dankzij grote schuiframen die uitkijken op een aangelegde tuin van maar liefst 146 m². De indeling is doordacht en praktisch, met een inkomhal met apart gastentoilet, 2 rustig gelegen slaapkamers met zicht op de tuin, een praktische berging met aansluiting voor een wasmachine en een grote leefruimte met plaats voor een open keuken, eetplaats en gezellige zithoek. Vanuit de leefruimte heb je directe toegang tot het terras en de tuin, waar je in alle privacy kunt genieten van rust en groen. Het appartement wordt opgeleverd zonder keuken en badkamer, wat je de vrijheid biedt om deze volledig naar eigen smaak en wensen in te richten. Bovendien is het uitgerust met vloerverwarming en heeft het een energiezuinig EPC A-label, wat zorgt voor lagere energiekosten. Als extra troeven zijn er een ondergrondse parkeerplaats met autolift en een ruime kelderberging voorzien. De ligging van nieuwbouwproject Felix combineert het beste van 2 werelden. Je woont in een rustige, kleinschalige residentie met veel privacy, terwijl je toch op wandelafstand bent van alles wat Leuven te bieden heeft: gezellige cafés, restaurants, winkels en sportfaciliteiten liggen vlakbij. Bij aankoop van dit appar
Type vastgoed Appartement
Prijs 495.000
Bewoonbare opp. 109
Aantal slaapkamers 2
Aantal badkamers 1