Te koop Hoeve / projectgrond

Beschrijving van   

Vergelijk realty's

Te koop Hoeve / projectgrond

Hoeve / projectgrond Hoeve / projectgrond Hoeve / projectgrond Hoeve / projectgrond Hoeve / projectgrond Hoeve / projectgrond Hoeve / projectgrond
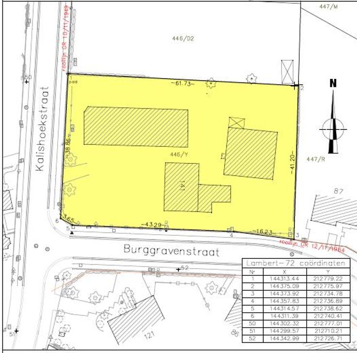
Dit pand wordt op internet verkocht van 03/02/2025 tot 11/02/2025. Een hoeve/projectgrond (verkaveld als 3 loten bouwgrond) gelegen te Melsele, in een gunstige, rustige omgeving, op slechts enkele minuten van invalswegen. De vlotte bereikbaarheid tot het centrum, scholen, winkels en openbaar vervoer zijn enkele troeven van de hoeve. Het perceel omvat 2.505 m². Heeft u graag meer info of een bezoek ter plaatse? Neem contact op met 03 750 97 50. G score: A P score: C
Type vastgoed Huis
Prijs 500.000
Aantal slaapkamers 1