Te koop MONDERNE nieuwbouwwoning met PRIVATIEVE AU...

Beschrijving van   

Vergelijk realty's

Te koop MONDERNE nieuwbouwwoning met PRIVATIEVE AUTOSTANDPLAATS n...

MONDERNE nieuwbouwwoning met PRIVATIEVE AUTOSTANDPLAATS n... MONDERNE nieuwbouwwoning met PRIVATIEVE AUTOSTANDPLAATS n... MONDERNE nieuwbouwwoning met PRIVATIEVE AUTOSTANDPLAATS n... MONDERNE nieuwbouwwoning met PRIVATIEVE AUTOSTANDPLAATS n... MONDERNE nieuwbouwwoning met PRIVATIEVE AUTOSTANDPLAATS n...
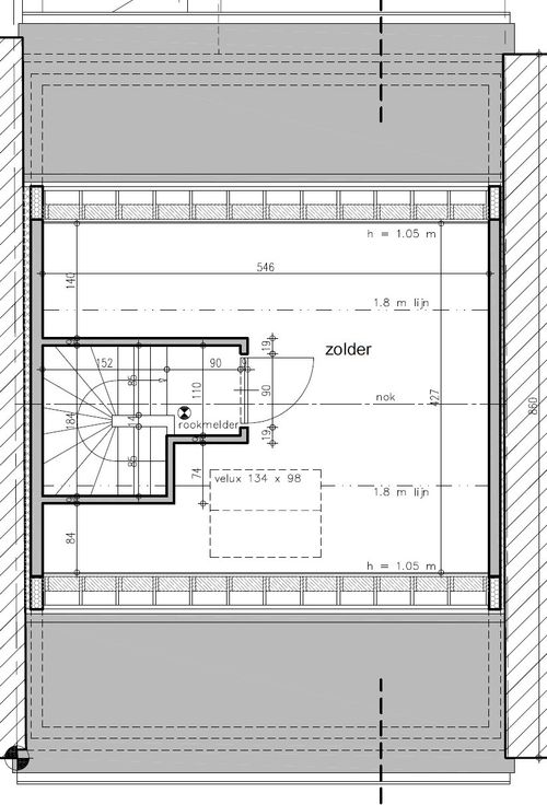
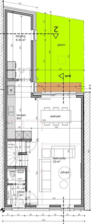
Deze MODERNE GEZINSWONING wordt opgericht op wandelafstand van het CENTRUM van Gistel, nabij buurtwinkels, openbaar vervoer en scholen. Deze ZEER BETAALBARE NIEUWBOUWWONING wordt gebouwd met UITERSTE AANDACHT voor ENERGIEZUINIGHEID, o.m. vloerverwarming op glvl en verdiep, zonnepanelen, ... Ook geniet u door de VELE GLASPARTIJEN over een MAXIMALE LICHTINVAL! Tevens behoort bij deze woning een PRIVATIEVE STANDPLAATS, iets verderop in de straat! De woning omvat op het gelijkvloers over een inkomhal met gastentoilet, zeer lichtrijke woonkamer met eetplaats en tuinzicht, open ingerichte keuken met aansluitend een praktische berging/wasplaats. Op de bovenverdieping is er de nachthal met 2e apart toilet, ingerichte badkamer en twee slaapkamers. De tweede vaste trap biedt toegang tot de dakverdieping waar de derde kamer zich bevindt.  De onderhoudsvriendelijke tuin is zuidwestelijk gericht! Op 100m van de woning (thv Brittenlaan 8) is er de autostaanplaats die inbegrepen is in de aankooprijs! Verkoop onder BTW-stelsel. E-peil 30. 3D foto ter illustratie Renovatieplicht: onbekend
Type vastgoed Huis
Prijs 315.000
Bewoonbare opp. 142
Aantal slaapkamers 3
Aantal badkamers 1