Te koop Appartement

Beschrijving van   

Vergelijk realty's

Te koop Appartement

Appartement
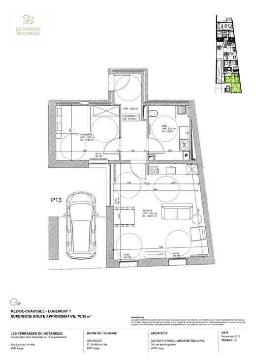
Sorry er is geen nederlandse vertaling beschikbaar. Situé au rez-de-chaussée avant de la résidence Les Terrasses du Botanique, ce bien de 70 m² est une opportunité rare et modulable, idéale pour un logement (ok PMR) , un bureau, une profession libérale ou un cabinet médical. Composition : hall d’entrée, salle de bains, séjour lumineux, une chambre. Personnalisable selon l'évolution de la construction - parking devant l'immeuble en option. Atouts de la résidence : Emplacement stratégique : à proximité du Jardin Botanique, de la gare Liège-Carré, des commerces de la rue Saint-Gilles et des HEC. Qualité et confort : architecture moderne, matériaux haut de gamme, PEB A, et espaces communs fonctionnels (espace vélo).
Type vastgoed Appartement
Prijs 210.000
Bewoonbare opp. 70
Aantal slaapkamers 1
Aantal badkamers 1