Te koop Melsele (Beveren), Bergmolenstraat - Fase 1: Lot 01
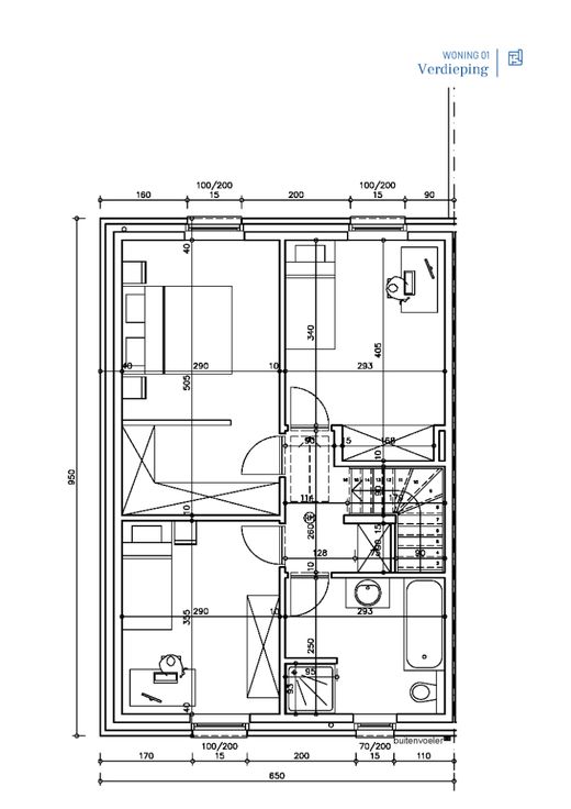
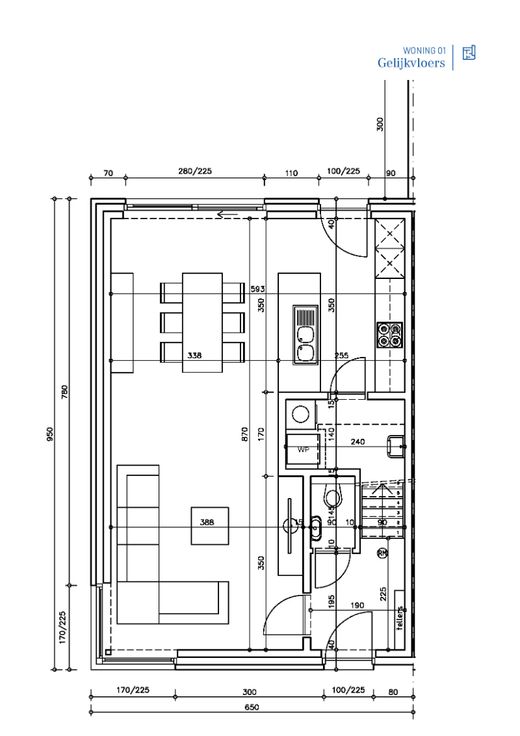
Halfopen energiezuinige nieuwbouwwoning op een Zuid gericht perceel van 193m2. De woning staat momenteel winddicht gebouwd en kan afgewerkt worden binnen de 6 maand na het maken van alle afwerkingskeuzes. De interieurafwerking van de woning is gedeeltelijk op maat te kiezen a.d.h.v. ruime afwerkingsbudgetten. De woning is uitgerust met een ruim pakket aan energiezuinige technieken zoals warmtepomp, ventilatie D, vloerverwarming op beide verdiepingen,... . Op het gelijkvloers beschikt de woning over een inkom met gastentoilet, een praktische wasplaats en een open leefruimte. Op de eerste verdieping bevinden zich 3 slaapkamers, een dressing en een badkamer met bad+douche. De zolder is toegankelijk met een vaste trap en kan indien gewenst als woonruimte afgewerkt worden (mits meerprijs). De woning wordt gebouwd in het nieuwbouwproject in de Bergmolenstraat te Melsele. In totaal worden daar 12 halfopen en gesloten woningen gebouwd . Zie jij jezelf hier wonen? Bel Ewout op 0497 588 888 of mail naar contact@huysmanbouw.be voor meer informatie. Meer info over het project op huysmanbouw.be
Renovatieplicht: onbekend