Te koop Handelszaak

Beschrijving van   

Vergelijk realty's

Te koop Handelszaak

Handelszaak Handelszaak
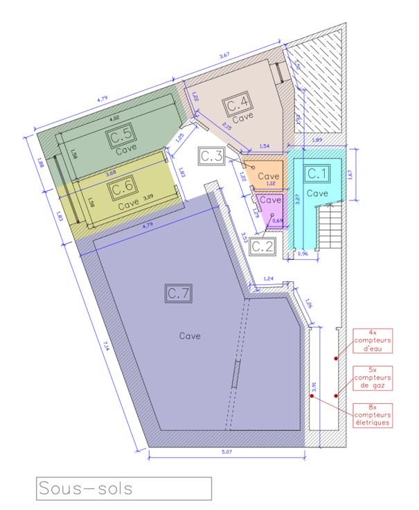
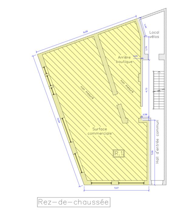
Rue de la carpe 77 à 1080 Bruxelles, vous trouverez un rez-de-chaussée commercial avec un logement attenant à vendre. Le rez-de-chaussée commercial est composé d'un commerce ( actuellement salon de coiffure ) et d'une grande cave de 40m2 Situation idéale pour une profession libérale ou commerce de proximité Tout type de commerce possible y compris HORECA moyennant autorisation de la commune !! Transports en communs et commerce à proximités Info & visites IMMO LAMINE 0495214159
Type vastgoed Commercieel
Prijs 170.000
Bewoonbare opp. 90