Te koop Nieuwbouwwoning te Heers

Beschrijving van   

Vergelijk realty's

Te koop Nieuwbouwwoning te Heers

Nieuwbouwwoning te Heers Nieuwbouwwoning te Heers Nieuwbouwwoning te Heers Nieuwbouwwoning te Heers Nieuwbouwwoning te Heers
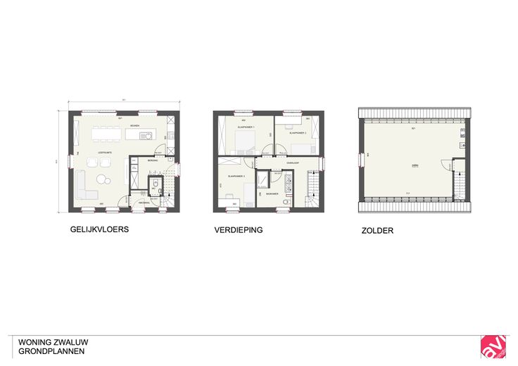
1 zeer energiezuinige woning in Heers- Vechmaal Kleinveldjestraat. Deze bouwgrond van 7a26ca biedt de mogelijkheid tot het bouwen van uw woning naar eigen wensen. Een gezellige rustige omgeving, omringd door groen. Op onze website stellen wij een pastorijwoning voor van 148m2 + 54m2 zolder, bestaande uit een inkomhal, toilet, open keuken en leefruimte en een berging op het gelijkvloers. Boven vinden we 3 ruime slaapkamers en een badkamer met douche. Uiteraard zijn er nog andere mogelijkheden. De woning biedt u alvast alle zekerheden en garanties inzake EPB waarden. We geven u graag uitgebreid uitleg over de vele mogelijkheden in een persoonlijk gesprek. Wij stellen deze woning voor, onder voorbehoud van het verkrijgen van een vergunning. Dit project realiseren wij in samenwerking met Vastgoed C. Meer info? Bel bouwadviseur Geert 011/450 280 voor een vrijblijvende afspraak. Sleutel op de deur afwerking: Ruwbouw winddicht Sanitaire leidingen (incl. hergebruik regenwater) Elektriciteit Vloerverwarming Pleisterwerken Isolatiewerken en chape EPB berekening Ventilatiesysteem D+ Kostprijs architect en veiligheidscoördinatie inclusief Warmtepomp en zonnepanelen Afgewerkte keuken Sanitaire toestellen Tegelvloeren op het gelijkvloers en in de badkamer Binnendeuren in tubespaan, reeds voorgeschilderd Voegwerken Trap in rubberwood PRIJS SLEUTEL OP DE DEUR € 417 609 excl. alle kosten op grond en constructie € 496 272 incl. alle kosten op grond en constructie
Type vastgoed Huis
Prijs 417.609
Bewoonbare opp. 148
Aantal slaapkamers 3
Aantal badkamers 1