Te koop Bouwgrond voor een halfopen woning

Beschrijving van   

Vergelijk realty's

Te koop Bouwgrond voor een halfopen woning

Bouwgrond voor een halfopen woning Bouwgrond voor een halfopen woning Bouwgrond voor een halfopen woning Bouwgrond voor een halfopen woning Bouwgrond voor een halfopen woning
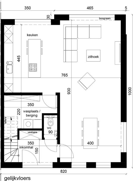
Ontdek deze zeldzame kans om eigenaar te worden van een prachtig stuk grond, gelegen aan 't Hoogste in Bornem en dit met een ruime oppervlakte van 584 vierkante meter. Ook hebt u hier de mogelijkheid om een woning bij te kopen, hierop kan u gedetailleerd zien welk huis mag gebouwd worden. Deze bouwgrond is gelegen in een rustige en goed bereikbare buurt omgeven door de natuur en toch dicht bij alle voorzieningen. Perfect voor het verwezenlijken van jouw droomwoning. Of je nu op zoek bent naar een plek om te bouwen of te investeren, dit is een kans die je niet mag missen. Prijs is exclusief BTW. Neem gerust contact met ons op voor meer info. 052/46.38.03
Type vastgoed Grond
Prijs 521.970