Te koop Appartement

Beschrijving van   

Vergelijk realty's

Te koop Appartement

Appartement Appartement Appartement Appartement Appartement Appartement Appartement Appartement Appartement Appartement Appartement Appartement Appartement Appartement
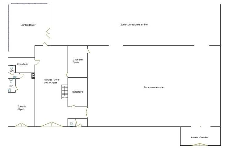
Uniek pand, 35 hectare grond, dicht bij voorzieningen en hoofdwegen. Bestaande uit een bedrijfsruimte van ca. 400 m² + parkeerplaats voor 12 auto's, luifel, 2 opslagruimtes, koelruimtes, eetzaal, wc, wintertuin, en een appartement van ca. 283 m² woonoppervlak, badkamer met douche, 3 wc's, uitstekend uitgeruste keuken, wasruimte en 5 slaapkamers. PVC ramen met dubbele beglazing, conforme elektriciteit voor het huis, bijna conform voor het bedrijf (2024), PEB B (128 kWh/m².an), centrale verwarming op olie, 60 fotovoltaïsche panelen,... Bieden vanaf €575.000 - vraagprijs: €650.000 Bezoek voor meer informatie en een virtuele rondleiding onze website op www.burima.be
Type vastgoed Commercieel
Prijs 575.000
Bewoonbare opp. 283
Aantal badkamers 1