Te koop Huis

Beschrijving van   

Vergelijk realty's

Te koop Huis

Huis Huis Huis Huis Huis Huis Huis Huis Huis Huis Huis Huis Huis Huis Huis Huis Huis Huis
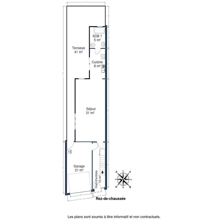
Charmante maison 3 façades bâtie sur une parcelle de 297m² en excellent état située sur les hauteurs d'Herstal. Composition: Au rez: Hall d'entrée, grand séjour lumineux, cuisine équipée donnant accès à la terrasse et une salle de bain. 1er: Hall de nuit, 2 chambres et une salle bain. Présence d'un garage. Divers: Présence de panneaux photovoltaïques, Châssis double vitrage pvc, électricité CONFORME, chauffage central gaz de ville. PEB: C, 216 kWh/m².an. Vous désirez visiter ce bien? Appelez le 0492.08.94.40.
Type vastgoed Huis
Prijs 229.000
Aantal slaapkamers 2
Aantal badkamers 1