Te koop Twee halfopen percelen zonder bouwverplich...

Beschrijving van   

Vergelijk realty's

Te koop Twee halfopen percelen zonder bouwverplichting in Houthalen

Twee halfopen percelen zonder bouwverplichting in Houthalen Twee halfopen percelen zonder bouwverplichting in Houthalen Twee halfopen percelen zonder bouwverplichting in Houthalen
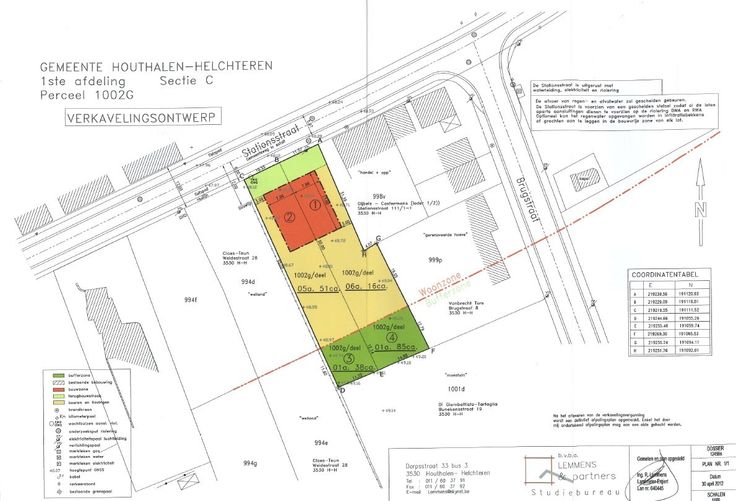
Bent u op zoek naar de perfecte plek om uw droomhuis te bouwen? Zoek niet verder! Dit ruime perceel aan de Stationsstraat in Houthalen-Helchteren biedt tal van mogelijkheden om uw ideale woning te realiseren. Perceel informatie Perceel 1: Halfopen bouwgrond Totaal oppervlakte van 08a 01ca (06a 16ca + 01a 85ca) Breedte straatkant: 11.57 meter Lengte: 62.14 meter Instelprijs: 135.000 EUR Perceel 2: Halfopen bouwgrond Totaal oppervlakte van 06a 89ca (05a 41ca + 01a 38ca) Breedte straatkant: 10.55 meter Lengte: 62.14 meter Instelprijs: 125.000 EUR Bouwvoorschriften: • Ca. 200 m² bewoonbare oppervlakte per eenheid • Gevelbreedte: 7,66 meter • Bouwdiepte gelijkvloers: Maximaal 17 meter • Bouwdiepte verdieping: Maximaal 10 meter • Bouwhoogte: Maximaal 2 volwaardige bouwlagen • Afstand perceel: 3 meter Extra mogelijkheden: • Optie tot kangoeroewoning • Ruimte voor het bouwen van een tuinberging, fietsberging, of autostandplaats • Vrije gevelmaterialen • Keuze tussen een plat of hellend dak Voordelen: • Geen bouwverplichting: Bouw op uw eigen ritme zonder tijdsdruk • Vrije keuze architect en aannemers. • Alle nutsvoorzieningen zijn reeds aanwezig op straat • Bouwvoorschriften zijn beschikbaar in de bijlagen, stedenbouwkundige inlichtingen zijn in aanvraag Deze percelen bieden een fantastische kans voor zowel particuliere als investeerders. De ligging in Houthalen-Helchteren en de nabijheid van alle essentiële voorzieningen maken dit een ideale plek voor een nieuwe woning
Type vastgoed Grond
Prijs 125.000