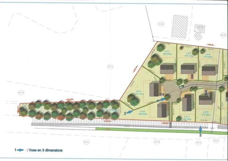
Sorry er is geen nederlandse vertaling beschikbaar. DEJA 5 TERRAINS VENDUS ! Il reste 4 beaux terrains. COURT-SAINT-ETIENNE, en bordure du RAVEL, en pleine nature, en zone d'habitat et d'espaces verts, mais à 15' à pied du centre de Court, à 1500Mètres de la GARE par le RAVeL, à 250Mètres d'un arrêt de bus ! Vous serez subjugués par l'endroit qui est un havre de nature ! La parcelle de terrain pourra accueillir la construction de 9 villas (habitation à caractère résidentiel permanent) et constituera donc un chouette quartier où les enfants pourront jouer et aller en vélo en toute sécurité. Les terrains du lotissement sont répartis autour d'une petite voirie déjà construite. Les terrains non bâtis, et libres de constructeur, sont déjà équipés en eau/gaz/électricité/téléphone/égouts avec chambre de visite égout sur chaque parcelle. Frais de bornage et de mesurage et frais de raccordement à charge de l'acquéreur. La construction de la villa pourra aussi comprendre la construction d'un volume secondaire de maximum 45M², les professions libérales sont acceptées. Le lot numéro 2 propose une superficie de 7a03ca avec une largeur de façade de +/-16,22Mètres, largeur arrière +/- 22,81Mètres, profondeur droite +/- 29,73Mètres, profondeur gauche +/- 32,83Mètres. Opportunité unique de réaliser votre plus beau projet proche des axes qui vous sont chers, tout en étant en pleine nature. On visite ? Descriptif complet uniquement sur www.valdelimmo.be. Dossier complet à votre disposit